梁配筋图识读
一、梁的配筋图画法 梁平面整体配筋图是在各结构层梁平面布置图上,采用平面注写方式或截面注写方式表达。 1、平面注写方式 平面注写方式是在梁的平面布置图上,将不同编号的梁各选一根,在其上直接注明梁代号、断面尺寸B×H(宽×高)和配筋数值。当某跨断面尺寸或箍筋与基本值不同时,则将其特殊值从所在跨中引出另注平面注写采用集中注写与原位注写相结合的方式标注:
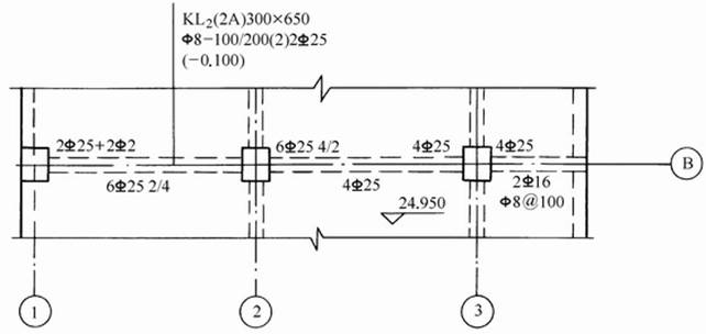
原位注写表达梁的特殊数值。将梁上、下部受力筋逐跨注写在梁上、下位置,如受力筋多于一排时 ,用斜线“/”将各排纵筋自上而下分开。 如下图表达了在 轴线上梁的情况,引出线部分为集中标注。KL2(2A)300×650为2号框架梁,有两跨,一端有悬挑、梁断面300×650;φ8-100/200 (2)2φ25表明此梁箍筋是φ8间距200,加密区间距100,2φ25表示在梁上部贯通直径为25mm的钢筋2根;(-0.100)表示梁顶相对于楼层标高24.950低0.100m,在 轴与①~②轴之间梁下部中间段6φ252/4为该跨梁下部配筋,上一排纵筋为2φ25,下一排纵筋为4φ25全部伸入支座。在①轴处梁上部注写的2φ25+2φ22 ,表示梁支座上部有四根纵筋,2φ25放在角部,2φ22放在中部。当梁支座两边的上部纵筋相同时,可仅在一边标注配筋值,另一边省略不注,如②轴梁上端所示。当集中注写的数值中某一项(或几项)数值不适用于某跨或某悬挑部分时,则按其不同数值原位注写在该跨或该悬挑部分处,施工时,按原位标注的数值优先选用。如③轴右侧悬挑梁部分,下部标注φ8-100,表示悬挑部分的箍筋通长都为φ8间距100的两肢箍。 梁支座上部纵筋的长度根据梁的不同编号类型,按标准中的相关规定执行。
2. 截面注写方式 是将断面号直接画在平面梁配筋图上,断面详图画在本图或其它图上。截面注写方式既可以单独使用,也可与平面注写方式结合使用,如在梁密集区,采用截面注写方式可使图面清晰。 下图为平面注写和截面注写结合使用的图例。图中吊筋直接画在平面图中的主梁上,用引线注明总配筋值,如L3中吊筋2φ18。
二、梁平法施工图 梁平法施工图是在梁的结构平面布置图上,采用平面注写方式或截面注写方式表达的梁配筋图;施工人员依据平法施工图及相应的标准构造详图进行施工,故称梁平法施工图。 首先,按一定比例绘制梁的平面布置图,分别按照梁的不同结构层(标准层),将全部梁及与之相关联的柱、墙绘制在该图上,并按规定注明各结构层的标高及相应的结构层号。对轴线未居中的梁,应标注其偏心定位尺寸,但贴柱边的梁可不注。 然后,根据设计计算结果,采用平面注写方式或截面注写方式表达梁的截面及配筋。 这里主要介绍平面注写方式,即在梁平面布置图上,分别在不同编号的梁中各选一根梁,在其上注写截面尺寸和配筋具体数值。 注写分为集中标注和原位标注。集中标注表达梁的通用数值,原位标注表达梁的特殊数值。当集中标注的某项数值不适用于梁的某部位时,则该项数值原位标注。施工时,原位标注取值优先。
图 平面注写方式示例
(一)集中标注 集中标注可从梁的任意一跨引出。集中标注的内容,包括4项必注值和2项选注值。4项必注值包括:梁编号、梁截面尺寸、梁箍筋、梁上部贯通筋或架立筋;2项选注值包括:梁侧面纵向构造钢筋或受扭钢筋、梁顶面标高高差。 1、梁编号:由类型代号、序号、跨数及有无悬挑几项表示如下。
2、梁截面尺寸:等截面梁有b×h表示;加腋梁用b×h、yc1×c2表示(其中c1为腋长, c2为腋高);悬挑梁当根部和端部不同时,用b×h1/ h2表示(其中h1为根部高, h2为端部高)。 3、梁箍筋:包括钢筋级别、直径、加密区与非加密区间距及肢数。箍筋加密区与非加密区的不同间距及肢数用“/”分隔,箍筋肢数写在括号内。箍筋加密区长度按相应抗震等级的标准构造详图采用。 如: f8-100/200(2)表示HPB235级钢筋、直径8mm、加密区间距100mm、非加密区间距200mm,均为双肢箍;f8-100(4)/200(2)表示HPB235级钢筋、直径8mm、加密区间距100mm为4肢箍、非加密区间距200mm为双肢箍; 4、梁上部贯通筋或非架立筋:所注规格及根数应根据结构受力要求及箍筋肢数等构造要求而定。当既有贯通筋又能架立筋时,用角部贯通筋+架立筋的形式,架立筋写加号后面的括号内。 如:2 f22用于双肢箍;2 f22+(4 f12)用于6肢箍,其中2 f22为贯通筋,4 f12为架立筋; 当梁的上部纵筋与下部纵筋均为贯通筋、且多数跨的配筋相同时,可用“;”将上部纵筋与下部纵筋分隔。如:2 f14;3 f18表示上部配2 f14的贯通筋,下部配3 f18的贯通筋。 5、梁侧面纵向构造钢筋或受扭钢筋:此项为选注值,当梁腹板高≥450mm时,须配置符合规范规定的纵向构造钢筋,注写如下:G4f12,表示梁的两个侧面共配置4f12的纵向构造钢筋,两侧各2f12对称配置。 当梁侧面需配置受扭纵向钢筋时,注写如下:N6f18,表示梁的两个侧面共配置6f18的纵向构造钢筋,两侧各3f18对称配置。 当配置受扭纵向钢筋时,不再重复配置纵向构造钢筋,但此时受扭纵向钢筋的间距应满足规范对纵向构造钢筋的间距要求。 6、梁顶面标高高差:此项为选注值,当梁顶面标高不同于结构层楼面标高时,需要将梁顶标高相对于结构层楼面标高的差值注写在括号内,无高差时不注。高于楼面为正值,低于楼面为负值。 (二)原位标注 原位标注的内容包括:梁支座上部纵筋、梁下部纵筋、附加箍筋或吊筋 1、梁支座上部纵筋:原位标注的支座上部纵筋应为包括集中标注的贯通筋在内的所有钢筋。多于1排时,用“/”自上而下分开;同排纵筋有2种不同直径时,用“+”相联,且角部纵筋写在前面。 如:6 f25 4/2表示支座上部纵筋共2排,上排4 f25,下排2 f25; 2f25+2f22表示支座上部纵筋共4根1排放置,其中角部2 f25,中间2 f22; 当梁中间支座两边的上部纵筋相同时,仅在支座的一边标注配筋值;否则,须在两边分别标注。 2、梁下部钢筋:与上部纵筋标注类似,多于1排时,用“/”自上而下分开。同排纵筋有2种不同直径时,用“+”相联,且角部纵筋写在前面。 如:6 f25 2/4表示下部纵筋共2排,上排2f25,下排4 f25; 3、附加箍筋或吊筋:直接画在平面图中的主梁上,用线引注总配筋值,附加箍筋的肢数注在括号内。当多数附加箍筋或吊筋相同时,可在图中统一说明,少数与统一说明不一致者,再原位引注。
4、当在梁上集中标注的内容(某一项或某几项)不适用于某跨或某悬挑段时,则将其不同数值原位标注在该跨或该悬挑段。 |
会员评论










