studio arthur casas事务所设计的巴西圣保罗casa HS住宅
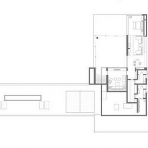
简介:这个名叫casa HS的住宅是圣保罗建筑事务所studio arthur casas设计的,它是一座距圣保罗市区一小时车程的乡村别墅。住宅面积为1000平面米,被分割成两个独立的体量,其中一个是儿童活动区和客房;另一部分是业主夫妇 ...
|
这个名叫casa HS的住宅是圣保罗建筑事务所studio arthur casas设计的,它是一座距圣保罗市区一小时车程的乡村别墅。住宅面积为1000平面米,被分割成两个独立的体量,其中一个是儿童活动区和客房;另一部分是业主夫妇的卧室和公共空间。基地位于一个高尔夫球场内,向周边自然景观开放,两个功能体量之间形成了一个水平露台,与方形的主卧室形成对比。
基地周边种植了高大的树木和灌木丛,临街的长立面覆盖了一层预制金属板,为住宅提供了私密性。这些金属板可以自由开启,露出内部的卧室空间。巨大的玻璃滑动门与走廊连成一体,让整个建筑体量完全暴露在自然之中。其它空间位于石材基础之中,与户外游戏
|
已有 0 人参与
会员评论
相关分类
最热文章
最新文章









