南非葡萄休憩园
摘要: 【摘要】建筑师Rudolf Perold的周末小憩园。该园由于其独特地域位置,设计师采用太阳能、自然通风,砖块取自当地材料,隔热结构设计,使得建筑在保留了景观效果的同时,尽可能的减少外界温度变化对房屋的影响。 ...
【摘要】建筑师Rudolf Perold的周末小憩园。该园由于其独特地域位置,设计师采用太阳能、自然通风,砖块取自当地材料,隔热结构设计,使得建筑在保留了景观效果的同时,尽可能的减少外界温度变化对房屋的影响。
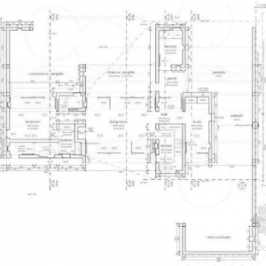
Kleinwingerd, 一词意为“小葡萄园”,是建筑师Rudolf Perold的周末小憩园,位于南非开普敦东北部的阿尔弗雷德哈姆雷特王子镇。该园由于其独特地域位置,设计师采用太阳能、自然通风,砖块取自当地材料,隔热结构设计,使得建筑在保留了景观效果的同时,尽可能的减少外界温度变化对房屋的影响。独居室卧位于矩形葡萄田的后方,这样的布局这可以欣赏到后院的美景,小葡萄园作为房舍与道路之间的屏障,也能最大限度的保留隐私。在屋内,有一个私人卧室、开放性起居室、厨房、酒窖、书房和浴室。一座林荫小院将起居室连向户外的葡萄园。
该建筑采用了被动太阳能结构,以尽量减少多余的热量;同时使用百叶窗和遮光板来控制采光。热空气可以经由可开/关的窗户和天窗逸出,以达到自然通风的效果。隔热的墙板和地面将能量损失降至最低。房屋的建造采用了本地取材生产的砖块,同时屋顶和天花板则使用了承重断热板和层积梁的设计。屋内经过慎重的设计,最大限度的保留了周围的山区,果园和葡萄园的景观。
译者:筑龙网 温冷清秋
|




