campomarzio设计的意大利考古剧场
简介:摘要: 在一个滨水的场地中,campomarzio和w+w‘s设计的洛迦诺 剧场 保留了中世纪城市的遗迹,这里曾是维斯康蒂城堡和里维利诺的所在地。这个曾经坚的水上固口岸作为maggiore湖综合体项目是前瑞士城远景设计的一部分 ...
|
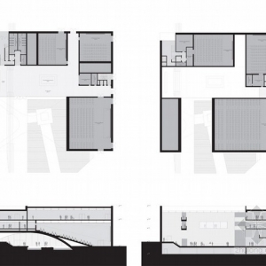
摘要:在一个滨水的场地中,campomarzio和w+w‘s设计的洛迦诺剧场保留了中世纪城市的遗迹,这里曾是维斯康蒂城堡和里维利诺的所在地。这个曾经坚的水上固口岸作为maggiore湖综合体项目是前瑞士城远景设计的一部分。为了保留完整的城墙,这个项目设计在遗迹的洪水线以下。
建筑设计:campomarzio建筑事务所
译者:好好霸霸 |
已有 0 人参与
会员评论
相关分类
最热文章
最新文章









