岸本和彦设计的日本天空捕手住宅
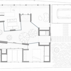
简介:设计者:岸本和彦 项目地点:日本 神奈川 基地面积:198.平方米 总建筑面积:105.4平方米 完成日期:2012年4月 功能:私人住宅 结构:木材 摄影:hiroshi ueda 岸本和彦(kazuhiko kishimoto)设计的“天空 ...
|
设计者:岸本和彦 岸本和彦(kazuhiko kishimoto)设计的“天空捕手住宅”(sky catcher house),位于日本神奈川县厚木市一个典型的郊外住宅区中。建筑基地周围遍布了一到两层的住宅建筑,为了保持一定的私密性,建筑师设计了一个方形的平面和简洁无开窗的立面,从建筑外部看根本无法推测出室内布局。进到主入口的格栅大门,首先映入眼帘的是一个开放的庭院,院子四周被起居空间包围,起居室外部安装了通高的玻璃窗。建筑外立面选用的木板材料同样延伸到内部地面上。内庭院木板地面上挖了几个圆洞来栽种树木,用自然元素界定道路并创造了庭院氛围。 室内房间的布局通过围绕内庭院创造一个狭长的线性交通流线。卧室和起居室与外廊毗邻,只能从室外庭院进入。户外平台让居住者与四季景色亲密相连,让他们在静态的内部自然环境中感受季节的更迭。就像这个设计的名字一样,建筑师用尽可能低的住宅高度,创造了一个最大化的内部天井。
|
已有 0 人参与
会员评论
相关分类
最热文章
最新文章









