formwerkz architects事务所设计的“armadillo住宅”
简介:新加坡建筑事务所formwerkz architects最近完成了“armadillo住宅”,并入围2012年 world architecture festival 世界建筑节“住宅”单元。针对基地的两个现状环境条件:旁边高速公路的噪音污染和大面积朝西立面带 ...
|
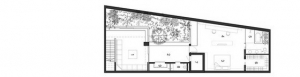
新加坡建筑事务所formwerkz architects最近完成了“armadillo住宅”,并入围2012年world architecture festival世界建筑节“住宅”单元。针对基地的两个现状环境条件:旁边高速公路的噪音污染和大面积朝西立面带来的西晒,建筑师的解决方法是,设计了四个台阶式的面板,对外封闭,在隔音防西晒的同时,在侧面设置了通高玻璃窗,垂直的窗户形态保证了空间的私密性。在台阶式外壳后面,建筑师还设计了一个下沉式庭院,与主要的起居室相连。悬挑出去的上层空间和重叠的外挂部分引入了间接自然光。安装在顶楼的机械风扇创造了一个烟囱效应,让底部的冷空气上升,进入到顶层的卧室中。
|
已有 0 人参与
会员评论
相关分类
最热文章
最新文章









