isay weinfeld设计的皮拉西卡巴住宅
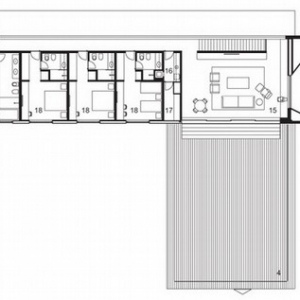
简介:这是由isay weinfeld设计的位于巴西圣保罗的皮拉西卡巴住宅项目,这个住宅位于一个倾斜的场地之上,住宅利用场地享受到最大的隐私,同时三层的楼层都能享受入口空间,储藏和住宅的机械区位于首层,部分掩埋在地下, ...
|
这是由isay weinfeld设计的位于巴西圣保罗的皮拉西卡巴住宅项目,这个住宅位于一个倾斜的场地之上,住宅利用场地享受到最大的隐私,同时三层的楼层都能享受入口空间,储藏和住宅的机械区位于首层,部分掩埋在地下,由规则的柱子支撑,一个石墙创造出深深的车库空间。一个L形的中层空间由一个弯曲的混凝土斜坡进入,这里容纳公共空间。一个木头薄层环绕住宅外立面,向着沿着水池延展的甲板延伸。一个垂直的向外突出的体量包含起居室内,室内的墙壁充满对比:首先是一个深深的玻璃墙壁连接着外侧的庭院,另一个则是一道垂直的混凝土板面组成的线条幕帘,它过滤视线和阳光。
|
已有 0 人参与
会员评论
相关分类
最热文章
最新文章









