ACXT设计的西班牙保障性住房
简介:项目名称:65 Affordable Units in Zabalgana 项目地点:西班牙 维多利亚 用途:保障型住房 建筑面积:10,400平方米 完成时间:2006 造价:5,445,000欧元 业主:VISESA 建筑设计:ACXT 设计团队:Principal De ...
|
项目名称:65 Affordable Units in Zabalgana
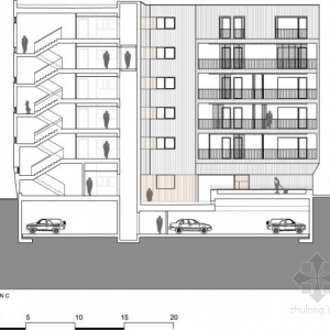
ACXT设计的西班牙保障性住房,位于西班牙维多利亚西的Zabalgana,包含65套经济适用房,由VISESA公司开发。设计充分考虑了当地的消费能力,以及经济适用房的购买财力等诸多情况,并将该地区的城市规划最为主要的参考参数融于设计之中。 建筑根据周边环境以及建设资金等情况,将住宅楼设计成u型,建筑木质材料的运用以及建筑形态给人硬朗的感觉,东西方向的阳光也可以很好的进入室内进行照明。木质阳台在阳关下给人以温暖的感觉,同时抵消了金属的硬感。
|
已有 0 人参与
会员评论
相关分类
最热文章
最新文章









