VAUMM设计城市电梯
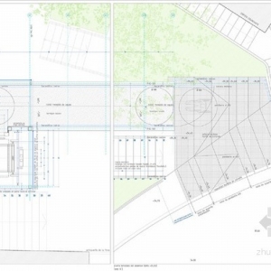
简介:建筑设计:VAUMM 技术设计:Julen Rozas 施工:Obegisa 摄影师:Aitor Ortiz 1960年的工业发展导致当地人口增加,出现新兴居住区。这些高密度居住区由谷底慢慢向上发展。建筑们根据地形位于不同的层 ...
|
建筑设计:VAUMM
1960年的工业发展导致当地人口增加,出现新兴居住区。这些高密度居住区由谷底慢慢向上发展。建筑们根据地形位于不同的层次,坡地使得布局不规则。 建筑师们需要在建筑间的缝隙中设计一个电梯,这里有一颗大树,成为场地不断变迁的宝贵见证者。这个电梯是一个交通点,需要处于最合适的位置,同时延展出去的行人交通路线也需要避开场地的大树。同时将焦点放在行人在使用时对外界环境,远山,海港的视觉体验。 设计力求让其透明,纤细。用三角桁架搭建,这是从结构逻辑以及工业性语言出发考虑。混凝土墙也具有这种工业性。期望这些钢铁工业制品能给这片海港中,与工业关系紧密的人们保持情感关联。
|
已有 0 人参与
会员评论
相关分类
最热文章
最新文章









