透明的小屋 下沉的房间
简介:这座日本乡野中的住宅由Suppose 事务所设计,它下沉式的空间和透明的墙体是为了能让住户在室内观察野生动物并与他们互动。 建筑名为广岛小屋,错层式结构,拥有透明的外墙和通透的内墙,能使视线穿越建筑,看见 ...
|
这座日本乡野中的住宅由Suppose 事务所设计,它下沉式的空间和透明的墙体是为了能让住户在室内观察野生动物并与他们互动。
建筑名为广岛小屋,错层式结构,拥有透明的外墙和通透的内墙,能使视线穿越建筑,看见外面的森林。
“在设计过程中,理念之一就是如何将其置于这片宁静的乡野风景中,以及如何在这样的环境中与动物保持互动,”建筑师如是道。 项目的设计概念是:轻盈的薄板悬浮在山坡之上,下面设有家具。通过这样的方式,在其遮蔽下创造出人与动物相遇的场所。
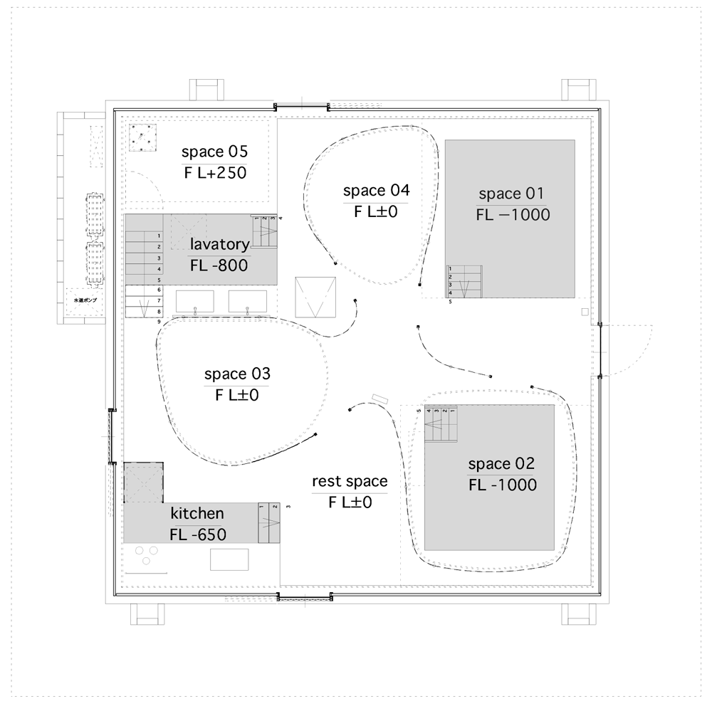
这间80㎡的住宅柔和的从山地沙砾中飘然挺立。为了使住户能拥有较私密的空间,一些房间下沉地下。卫生间完全位于地下,但是其他的下沉空间与主楼面的高差不大于1m。因此,穿行于这些空间中,不需要设置扶手。
其中一处下沉空间是厨房,有趣的是,这里主楼板变成了带有水槽和炊具的厨房操作台。建筑师说:“有可能在不经意的时刻,小鹿正在盯着准备饭菜的住户。”
主楼面通过弧形的金属网进行空间隔断。“这些隔而不断的分区指引着家具布局,促使住户能自然的将其排列整齐。”设计团队解释道。
巨大的屋顶是整个设计中最显著的不透明元素。它有着锥形的边缘,营造一种薄如纸的视觉印象。
屋檐向外悬挑出几米,与立面墙体的高度一致。围绕着整个住所的周圈创造了一处宽阔的灰空间,对小动物很有吸引力。 这些透明的墙体是由亚克力做成的,而不是玻璃,选择亚克力材料是因为其较高的隔热性能。木框架昭示了门所处的位置,用时还配有木楼梯和木家具。
“到目前为止,建筑一直都是由独立的元素组成,但是如今随着科学技术的发展,墙体、窗户和柱子之间的界限越来越模糊,建筑构成可以更随心所欲。”建筑师补充道。
该住宅虽然露出来的很少,但一样拥有大量的储存空间,这些空间全部藏在楼板下。
地面层平面图
地下层平面图
剖面图 |
















