实验住宅 Memu Meadows by 隈研吾(Kengo Kuma)
简介:这座看上去颇似农村小茅屋的住宅位于日本北海道(Hokkaido)纪町(Taiki-cho),由日本著名建筑师隈研吾(Kengo Kuma)设计。虽然Memu Meadows看上去很有诗意,但其实其该建筑是一座具有超前性或者未来性的实验性建 ...
|
这座看上去颇似农村小茅屋的住宅位于日本北海道(Hokkaido)纪町(Taiki-cho),由日本著名建筑师隈研吾(Kengo Kuma)设计。虽然Memu Meadows看上去很有诗意,但其实其该建筑是一座具有超前性或者未来性的实验性建筑。着重研究寒冷地区的建筑环境设计,主题为《建筑环境一体化设计》。这里召开的第一次会议讨论了关于日本大地震后的重建问题,以及未来建筑的形态、建筑师如何保护社会减少地震及海啸的破坏等过去一直困扰着建筑界甚至整个社会的话题。
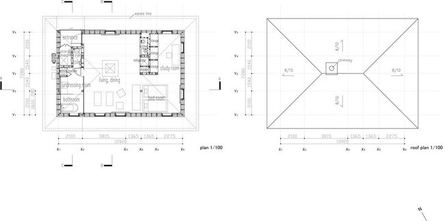
Memu Meadows实验室被设计成容易组装和拆卸的“smart” house,建筑只有80平米,木框架结构,整个屋面及墙面采用双层半透膜材料覆盖,不仅提供了柔和的自然光线及保温效果,同时建筑的通风及空气调节也是通过该材料实现。地热采暖系统能够有效的节约能源,天花板和地板内部都设有传感器以收集抗震相关数据信息。所以尽管房子面积不大,但造价却并不低,如果实验成功可能会进行量产以降低造价。
|





























