建筑时空 首页 建筑作品 室内设计 查看内容

巴西圣保罗TOG定制家具旗舰店 TOG flagship store by Philippe Starck & Triptyque

2016-2-13 15:18| 发布者: ccbuild| 查看: 278| 评论: 0 |来自: 网络

简介:TOG是巴西著名的定制家具品牌,其在圣保罗(So Paulo)的首家旗舰店由法国设计师Philippe Starck联手当地Triptyque工作室设计。建筑由一个两层的类似厂房的大空间建筑改造而成,2100平米的商店被打造成一处创意社交 ...

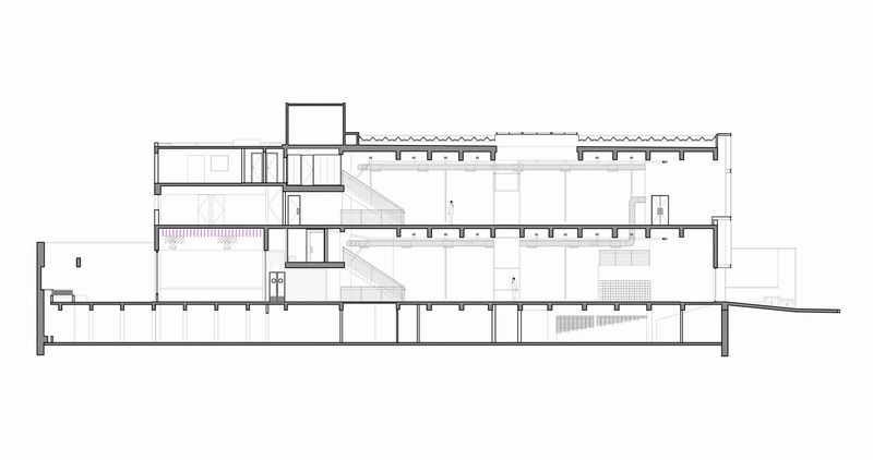
TOG是巴西著名的定制家具品牌,其在圣保罗(So Paulo)的首家旗舰店由法国设计师Philippe Starck联手当地Triptyque工作室设计。建筑由一个两层的类似厂房的大空间建筑改造而成,2100平米的商店被打造成一处创意社交场所,在这里除了购物,还可以解决吃喝玩乐、阅读、聚会等功能。TOG希望顾客们能在这里放松下来,慢慢感受这里的家具带给他们对于生活的体会。

这样的商场,逛起来才更能激发购买欲望~

收藏 邀请

鲜花

握手

雷人

路过

鸡蛋

相关阅读

已有 0 人参与

会员评论

返回顶部