由乳制品工厂到Loft住房 House in an old Barcelona dairy by Lluís Corbella
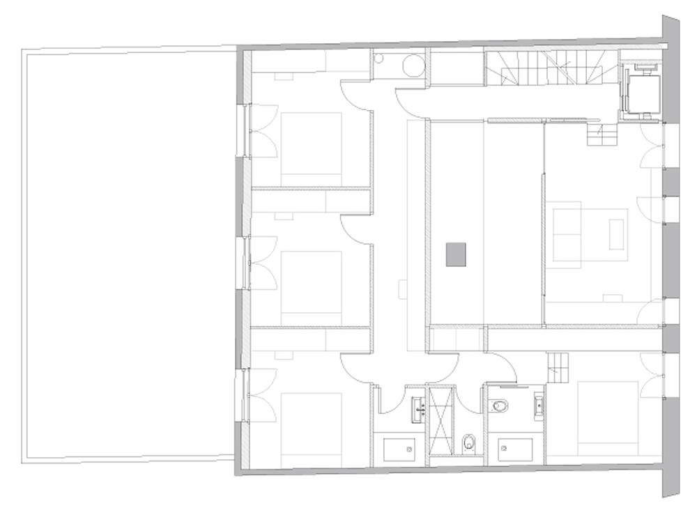
简介:这是一座位于巴塞罗那格拉西亚区始建于1934年的老建筑,该建筑由一个仓库以及相邻的乳制品商店组成。商店所有的奶制品由这里加工,现做现卖。 1984年,当地禁止了城内的禽畜养殖,但该商店却一直被保留并慢慢荒废 ...
|
这是一座位于巴塞罗那格拉西亚区始建于1934年的老建筑,该建筑由一个仓库以及相邻的乳制品商店组成。商店所有的奶制品由这里加工,现做现卖。 1984年,当地禁止了城内的禽畜养殖,但该商店却一直被保留并慢慢荒废了下来。直到法国建筑师Marc Mazeres将其买下,并邀请当地建筑师Lluís Corbella将其改建成了适合一家子居住的Loft住宅(Marc Mazeres为何不自己设计?…)
整个返修过程动静不小,除了稳定结构,保留原有屋顶与外墙,内部被全部翻新粉饰。也许是结构需要,中央一颗充满了沧桑感柱子被保留下来,除此之外只有在偶尔的角落能感受到历史的片段。当家具与现代元素的材料勾兑到内部以后,这里变成了一处宽敞舒适的现代生活乐园。 “对于这次改造而言,保护建筑的原有特征是一个很重要的部分”Corbella讲到“我们试着将这些元素在视觉上给予一定的存在感”
|
已有 0 人参与
会员评论



















