德国波兹坦的“反重力”别墅
简介:这宽敞的私人住宅位于德国Wilhelmshorst波茨坦附近一个狭长而空旷的住宅区的后方。 该住宅的周边环境相当安静,而且有相当多的植被环绕。
|
这宽敞的私人住宅位于德国Wilhelmshorst波茨坦附近一个狭长而空旷的住宅区的后方。 该住宅的周边环境相当安静,而且有相当多的植被环绕。
平坦的屋顶及露台有着相当舒适的空间,外观上着重强调了两层楼的外观。
南边的宽悬臂结构有着一个通道,可用于多种实际用途。并且在视觉营造出了无与伦比的“反重力”效果。
两层之间的重叠部分仅仅只有70平米,而二层的上部分主要覆盖着停车区域。
该住宅周围的建筑基本都是以红砖以及银色的元素呈现。
所以该建筑的底层也吸收了这种元素,大量采用了红砖的墙面及大面积的落地窗。南边的外立面表面覆盖着玻璃窗格。楼上的外立面则像上过釉一般的光亮,为住户提供了一个极致的森林和花园般的景观体验。
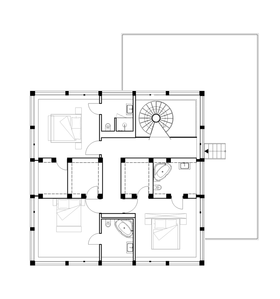
一楼主要为生活区,有餐厅、厨房、书房、衣帽间、浴室和杂物间。壁炉则更增添了一种简单而温馨的气氛。楼上有三个卧室,每个都有附带独立的私人浴室和一个储藏室。楼梯则通向近90平方米的阳台。
水疗中心和健身区也位于一楼。楼梯采用了螺旋楼梯,缠绕上升,很好的保证了内部空间的连续性,使得一楼和二楼平滑的过渡。
设计中进一步强调和表达了室内设计,对于光线的把握恰到好处,种种的细节都能看出设计师的独具匠心。
|
已有 0 人参与
会员评论




