Two Moon:咦,怎么多了一个月亮?
有时,客户总会为他们的想法冠以充满想象力的名称。
这一次的这个项目,有个很浪漫的名称,叫做“两个月亮”。 他谈到了建立一个私人文化中心,周边围绕着一个咖啡馆和一个画廊。就似一个自由的空间,有如同电影,充满了欢乐和轻松的气氛。 该项目类似双子楼,预算非常低,所以从一开始设计师便决定建造和设计一些简单的构造。
该建筑的选址位于一山城北面约一个小时的车程。
该地区事实上是一个较为“下只角”的区域,边上的建筑在建造时,甚至都没考虑到自身周边的其他建筑。而正是这样,则导致了工业建筑、住宅区及商业区各种完全混乱的在这里随意的安插。
这块菱形的区域被一分为二,并且留出了足够的驻车区域及人行道。
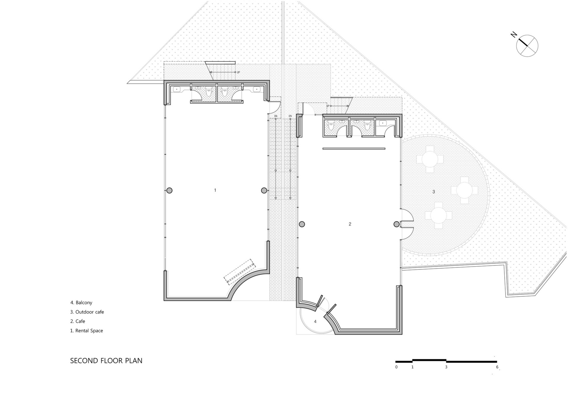
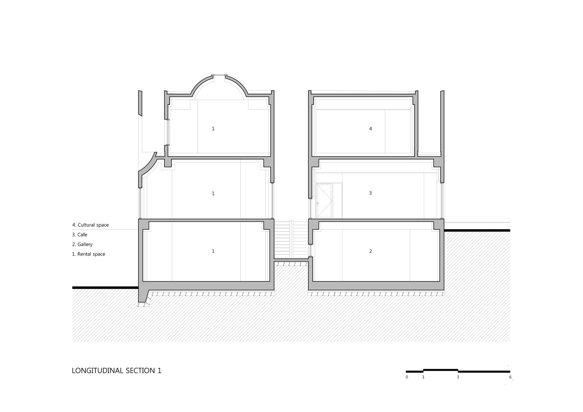
低预算和两个月亮的主题成为了主要的设计灵感。 每个建筑都有三层,通过单独的楼梯可以直接到达,通过这样的设计,公共空间可以减少到最小,最大限度的将空间分配给租赁的客户使用。
两栋建筑之间有一个巨大的缺口,因此也就拥有了一个独特的凹陷空间——一个月亮的图案。右边的那一栋有一个似乎充满诱惑的阳台,而左边则是一道水平的狭缝。
而在该建筑的其他外立面上,也有着不同大小不同深度的开孔。这些不规则的凹陷使得建筑的内部空间显得“凹凸有致”。
上面的楼层附带一个有高墙的户外花园。
最高层的顶部就类似于一个迷你万神殿。
第三层的独立的墙面上画着代表不同客户的星座符号。
晚上看起来是不是美翻了?
(本文译自Archdaily,由优尔城Alex翻译,如转载、链接、转贴或以其它方式使用本稿,须注明“来源:优尔城”) |
会员评论




