素房子的艺术哲学
简介:来自APOLLO: 一对老外夫妇在日本某安静住宅区购买了一块地,委托建筑师为其设计住宅。业主男主人是一位玩车的现代艺术品收藏家,他希望同他的爱车以及藏品共同生活在一起。
|
来自APOLLO: 一对老外夫妇在日本某安静住宅区购买了一块地,委托建筑师为其设计住宅。业主男主人是一位玩车的现代艺术品收藏家,他希望同他的爱车以及藏品共同生活在一起。
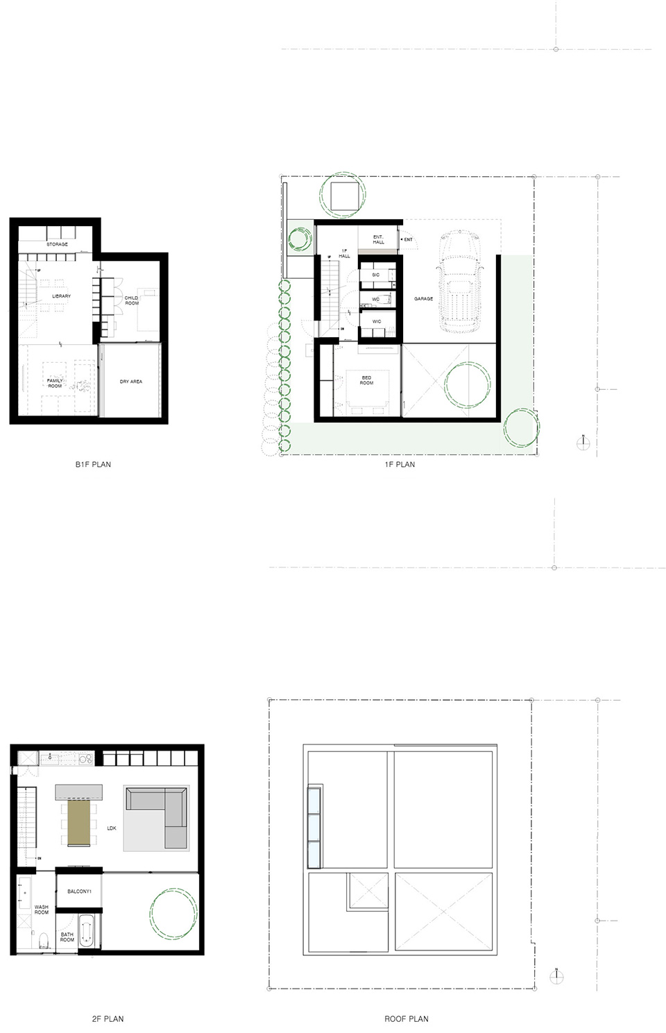
建筑师为这对夫妇打造了一栋由素净的混凝土和青铜色玻璃作为主材的家,住宅的用地方正,建筑师将建筑布局呈一个L型,角落取一块方地做成下层是庭院,为地下一层的女儿卧室和女儿起居室提供充足的采光。一层有主卧区,储物区,以及能停放两辆车的车库。二楼是正式的起居室,餐厅以及厨房。为了保护隐私,所有的房间都朝向内院。
二楼主要起居空间采用了灰色和米色作为基调色,家具则采用了意大利现代家具,在如此沉稳舒适的空间中,点缀了蜷川实花的炫色艺术绘画,丰富的色彩以及大胆跳跃的原色与空间形成强烈对比,成为空间亮点。
大面积的落地窗可以观赏素净庭院中清雅绿色植物。天窗引入纯净而稳定的光线。这座住宅,就像是城市中的小型艺术博物馆,其生活空间对自然,季节不仅敏感,也始终贯穿着人类非凡的审美情怀。
|
已有 0 人参与
会员评论




