马耳他海上贸易中心(Malta Maritime Trade Center)
简介:项目名称:马耳他海上贸易中心(Malta Maritime Trade Center) 建筑师:Architecture Project 项目地点:马耳他 马尔萨 项目面积:17 000㎡ 项目时间:2007年 摄影:David Pisani , Courtesy of Archit ...
![]() 项目名称:马耳他海上贸易中心(Malta Maritime Trade Center) 建筑师:Architecture Project
项目地点:马耳他 马尔萨
项目面积:17 000㎡
项目时间:2007年
摄影:David Pisani , Courtesy of Architecture Project, Teresa Sciberras
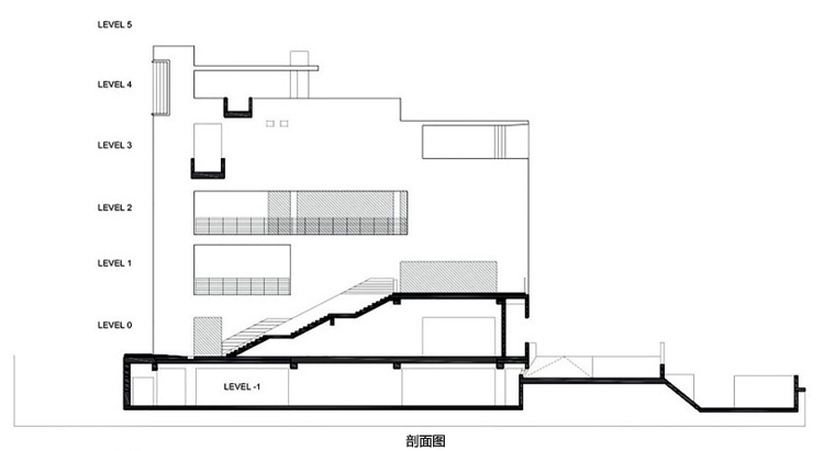
项目包括建造一间办公综合体,为马耳他海事管理机构提供办公处和其他与海事相关的实体。尽管新建筑的形态反映了建筑功能,但主要是从场地状况中汲取灵感。多年以来,先前存在的基岩扩展形成码头,通过材料的沉淀积累和浇注混凝土建造而成。最终为了避免昂贵的打桩基础而确定了L形的新建筑形态。
中央体块包含了主入口和主要的功能区。三座特色鲜明的体块坐落在同一平台上,容纳了所有与海事相关的体块。该楼层还与公众建立互动,位于面朝大海、自然通风的停车场正上方。
建筑回应了车水马龙的大道造成的严峻的场地环境,避开北立面,入口位于朝南的海港立面,获得明亮的自然光线和视野。服务枢纽包含垂直流线核心、储藏室和卫生间,位于北立面正后方,进一步使建筑从严重污染的周边环境中脱离出来。
南立面上的金属百叶屏保护玻璃表面不受夏季烈日的破坏,同时降低冬季穿透的入射光线。屏幕优化的几何设计源于对屏幕遮阳性、自然采光和视觉性能的研究分析,保证了最大化的隔热性能和日光控制以及视觉透明度。
|



















