周市镇文体中心(ZHOUSHI Culture & Sports Center)
简介:项目名称:周市镇文体中心(ZHOUSHI Culture Sports Center) 建筑师:UDG YangZheng工作室 项目地点:中国 苏州 项目面积:31 387㎡ 项目时间:2013年 摄影:Su Shengliang 该项目是一家综合完 ...
![]() 项目名称:周市镇文体中心(ZHOUSHI Culture & Sports Center) 建筑师:UDG YangZheng工作室
项目地点:中国 苏州
项目面积:31 387㎡
项目时间:2013年
摄影:Su Shengliang
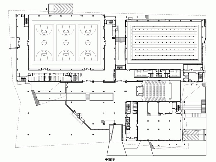
该项目是一家综合完整的文体中心,包含了文化馆、篮球馆、游泳池、多功能大厅、文化艺术展览中心和休闲商业街道。
建筑师提出了采用巨型结构的理念,用巨大的活动屋顶来覆盖不同的功能展馆。通过折叠、波动和修剪来满足篮球馆、游泳馆、文化展馆和大厅等功能空间不同的高度要求。建筑设计宛若一件雕塑,带给人强烈的视觉冲击。
每间场馆都相对独立,便于使用。在进行设计时,建筑师将不同主题和每间场馆间的空间尺度考虑进来,使建筑在清晨、傍晚和午夜等不开放的时间段为市民们提供社会空间。这些也突出了文体中心的开放性和参与性。
中国江南地区的传统建筑颜色是黑、白、灰和木头的颜色。铝镁锰合金屋顶、未加工的石材幕墙、半透明的丝印玻璃幕墙和木头颜色的铝合金天花板等现代材料的应用回应了这一传统。这些都自然传达了对传统建筑与文脉的尊重。
周市文体中心重塑了城市空间,激发了新的城市活力。它是一条小船,承载和弘扬周市传统和文化,是时代特色的象征。
|






























