建筑时空 首页 建筑业界 室内设计 查看内容

美国森德伯格别墅装修设计

2012-5-15 00:00| 发布者: ccbuild| 查看: 119| 评论: 0

摘要: 所 在 地:美国宾夕法尼亚州拉法叶山 面积:350 图片提供:Barry Halkin Photography 该别墅始建于中世纪,之前经过翻新,周围自然环境优美,是一片茂密的森林。别墅二层的房间深入到树冠中,带有一个客厅,一个门 ...

所 在 地:美国 宾夕法尼亚州 拉法叶山
面积:350
图片提供:Barry Halkin Photography

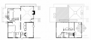
该别墅始建于中世纪,之前经过翻新,周围自然环境优美,是一片茂密的森林。别墅二层的房间深入到树冠中,带有一个客厅,一个门厅,厨房和浴室,与周围环境融为一体。设计师将原先狭小的门厅改建为带有天的双层门厅,二层还有玻璃走走廊。通过门厅可以直达厨房,餐厅和客厅。从窗户里可以尽情欣赏周围美景。二层还有主卧和配套浴室,主卧里也装有天窗,与悬臂式阳台相连,之间有落地玻璃门隔开。卧室与别墅的其他房间之间是钢化玻璃制成的走廊。

 

 

 

 

 

 

 

 

 

 

 

 

 

 

 

 


鲜花

握手

雷人

路过

鸡蛋

相关阅读

返回顶部