建筑时空 首页 古建文化古建通鉴
订阅

古建通鉴

纳西民居
纳西民居
  纳西民居大多为土木结构,比较常见的形式有以下几种:三坊一照壁、四合五天井、前后院、一进两院等几种形式。其中,坊一照壁是丽江纳西民居中最基本、最常见的民居形式。在结构上,一般正房一坊较高,方向朝南, ...
2013-8-16 22:15
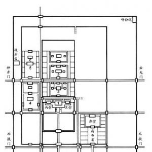
河南省尉氏县城规划
河南省尉氏县城规划
  河南尉氏县城地处郑州市正南方、新郑县正东约45公里,向南距陵县城50公里。尉氏县城地处中原大平川,在河南省境的中心略偏北。尉氏县城内城区扩展,东西略长。全城建六座城门,南城一座城门称南门,北城一座城门 ...
2013-8-16 22:14
西汉未央宫
西汉未央宫
汉长安未央宫遗址。未央宫是西汉王朝的政治统治中心   此宫位于长乐宫以西,始建于高祖七年(公元前200年),自高祖九年迁朝廷于此,以后一直是西汉王朝政治统治中心。其平面略呈方形,东西宽2250米,南北长2150 ...
2013-8-16 22:14
古代建筑美中的阴阳合德
  风水中阴阳相成、阴阳合德的观念,在中国古代建筑中有着充分体现。总体上,较正规的官式建筑与公共建筑,主要包括皇宫、庙宇、皇陵、官衙和城门等,一般都严谨、高大,相对表现出阳刚特征;而民居建筑,一般都布 ...
2013-8-16 22:14
凝固着历史和回忆的露天建筑博物馆
凝固着历史和回忆的露天建筑博物馆
凤鸣街区几乎每户门前都建有雨篷 院门两侧石垛上留有长方形的遗迹——在院门名牌上写下主人的名字正是日式住宅的传统 刘长春和郭安娜曾在高尔基路193号的并立式住宅中相邻而居    ...
2013-8-16 22:14
中国古典园林中意境的表达方式
中国古典园林中意境的表达方式
  “意境”一词最早见于王昌龄的“诗论”,他将诗的境界分为三种:物境、情境、意境。物境偏于形似,情境偏于表情,意境偏于意蕴。相对而言,物境为实,是客观的物质存在,可以被大众普遍体验与感知;情境、意境为 ...
2013-8-16 22:14
六月廿四话拙政园荷花
  荷花虽是一种季节性的花卉,可一年四季荷都会时隐时现地出现在苏州人的生活中。人们爱它出污泥而不染,爱它亭亭玉立而无瑕,是花中君子、凌波仙子。   看荷当由春天开始,小荷才露尖尖角,虽不一定有蜻蜒立 ...
2013-8-16 22:14
莺莺塔怪声与建筑结构有关
  据史料记载,莺莺塔本是一座唐代的古塔,但在明朝的时候,由于地震崩塌了。于是,人们又重新修了一座,并保留了它原本的唐塔风貌,只是由原先的7层加盖到了13层。   为进一步证实这种判断,专家们又在莺莺 ...
2013-8-16 22:14
宋朝皇陵通鉴―北宋
宋朝皇陵通鉴―北宋
五代十国的分裂局面持续了半个多世纪。直到后周禁军统帅赵匡胤发动"陈桥兵变",夺取后周政权,建立了皇权高度集中的北宋。北宋的陵寝制度大体上沿袭了唐代初的制度,只是改变了汉唐预先营建寿陵的制度。北宋的陵寝在 ...
2013-8-16 22:14
珠海斗门老街 朝花夕拾梦犹在
珠海斗门老街 朝花夕拾梦犹在
  站在斗门老街,历史的烟尘尚未散去,翻修带来的新希望已经破壳而出,我们激动不已,我们看到的希望更为确定……“喜鹊喜,贺新年,阿爸金山去赚钱,赚得金银千百万,返来起屋兼买田。”   一首斗门本土童谣 ...
2013-8-16 22:14
古建知识--清代建筑
清代(公元1616-1911年)是中国最后一个封建王朝,这一时期的建筑大体因袭明代传统,但也有发展和创新,建筑物更崇尚工巧华丽。   清代的都城北京城基本保持了明朝时的原状,城内共有20座高大、雄伟的城门, ...
2013-8-16 22:14
洛阳北宫
洛阳北宫
  魏代汉,定都洛阳。东汉洛阳原有南北两座宫城,魏继承邺城传统,只重建了北宫一宫。   北宫布局分前后两部分,前为办公的朝区,后为魏帝的家宅,即寝区。朝区主殿为太极殿,为举行大典之处。南对宫城正门阊 ...
2013-8-16 22:14
世界造园艺术的三大体系
世界造园艺术的三大体系
  关于世界造园体系,国际园景建筑家联合会1954年在维也纳召开的第四次大会上,英国造园家杰利克在致辞时把世界造园体系分为:中国体系、西亚体系、欧洲体系。   中国体系:典雅且精致   中国古代 ...
2013-8-16 22:14
窑洞——最早的建筑形式
  所谓窑洞是沿土壁掘出与地面平行之洞穴,又称横穴。它与天然洞穴颇为相似,可能是古人最早创造的建筑形式,现存实例可见宁夏海原县菜园村遗址。但它的时代较晚,约在仰韶晚期,即公元前2600~前2200年期间。其中 ...
2013-8-16 22:13
古建筑“流动”着文化传统
  建筑被称之为凝固的音乐,正是因为它们在设计、建造的时候就是由许多不同的音符、节拍和韵律所组成的。   在我国现存的不少古建筑中,保存了众多音响音韵的奇迹,如北京天坛皇穹宇殿的回音壁、三音石、五音 ...
2013-8-16 22:13
返回顶部