英国sussex别墅:Conran & Partners
简介:建筑师:Conran & Partners 建筑地点:东苏塞克斯,英国 项目面积:425平米 预算:180万英镑 项目年份:2009 摄影:Jim Stephenson Conran & Partners建筑事务所设计了一座非常环保的现代家庭住宅,住宅建筑 ...
|
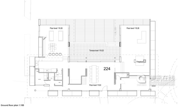
建筑师:Conran & Partners Conran & Partners建筑事务所设计了一座非常环保的现代家庭住宅,住宅建筑场地原来是东苏塞克斯的一座学校。住宅的墙壁和花园的树篱使用了高质量的传统材料,体现出一种强烈的水平特色。住宅坐落在场地北端的树林中,朝南而立。住宅南面采用玻璃立面设计,能加强住宅采光效果,同时立面上的大型屋檐也能起到遮挡烈日的作用。住宅第一层使用铜质覆面,以线性形式从东边延伸到西边,作为花园和附近噪音的隔板。场地中挖掘出来的废料堆积在马路边缘,进一步降低噪音级别。 住宅墙壁还融入了绝热系统,能够提高很高的热质量。地下热泵和1000米长的接地环路连接在一起,为地板进行加热。 住宅有一个双层高的中央入口大厅,大厅西边是家庭翼部,包括厨房、用餐室、杂物间和儿童卧室;大厅东边的设计则偏安静一些,包括休息室、图书馆、书房、主卧室和客房。
全部图片:点击下载(1.5M 23张) 编译:美讯在线-建筑中国网
|
已有 0 人参与
会员评论













