美国亚利桑那州六户庭院住宅:IRDA
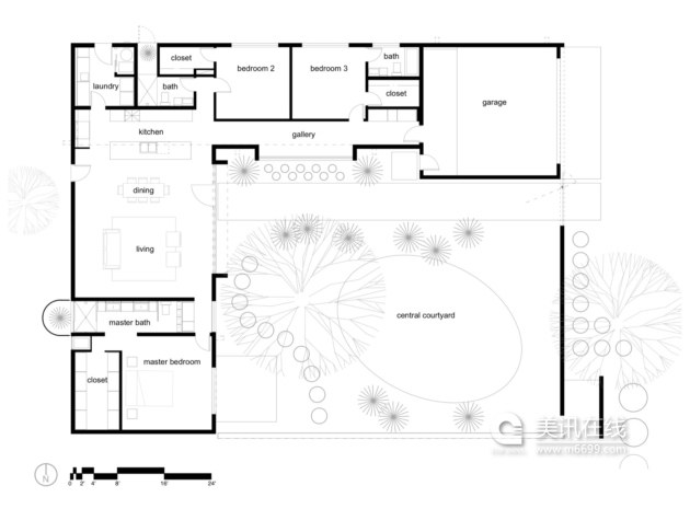
建筑设计:Ibarra Rosano Design Architects 图森是一座位于荒漠中的小镇,城镇规划杂乱无章,而且缺乏公共交通。Ibarra Rosano Design Architects建筑事务所受委托在这里进行“六户庭院住宅”项目,顾名思义,这个项目由六间庭院住宅组成,该项目主要是用来证明高密度住宅区和荒漠城镇插建项目开展的可能性。 这个项目参考了图森镇的历史建筑和邻近的住宅房,其主要特点是中央庭院、低层砖石建筑和思考慎密的向阳朝向。 庭院采用酷热干旱地区的传统设计理念,这种设计理念能够利用到沙漠凉爽的夜晚,以确保住宅的安全性和隐私性。每间住宅的主要空间都对着中央庭院,而相对隐私一些的空间则对这私人景观进光口,如浴室。 保持室内外空间的连通是这个项目从始至终贯彻的一个设计理念。在走廊中,建筑师在胶合叠层板梁中精心设计出一个漂亮的窗台,可以看到中央庭院。主卧室能通往大型户外“房间”,而主浴室和客人浴室则对着小型私人户外空间,这样会带来一种户外沐浴的感觉。厨房的天花板要比其他地方高,这样是为了界定出烹饪区域,并让天窗平衡南方和北方照入餐室和生活区的自然光线。 住宅设计的最大魅力不在于形式,而是在于对人们生活体验的准确把握。
全部图片:点击下载(1.1M 21张) 编译:美讯在线-建筑中国网
|
会员评论











