吉隆坡的舒爽住宅
摘要: 来自WHBC Architects:本项目位于马来西亚吉隆坡,这栋以混凝土为基材,浑身朴素的住宅掩映在绿色葱郁的植被中,具有厚度的混凝土格架外表皮保护住建筑,让居住空间远离热带的阳光及雨水,同时又成为室内外模糊的边 ...
来自WHBC Architects:本项目位于马来西亚吉隆坡,这栋以混凝土为基材,浑身朴素的住宅掩映在绿色葱郁的植被中,具有厚度的混凝土格架外表皮保护住建筑,让居住空间远离热带的阳光及雨水,同时又成为室内外模糊的边界,让室内能与室外绿色相连。
混凝土格架外表皮厚度达到0.9米,完美阻隔阳光的同时也允许漫反射光线进入室内。
热带建筑除了要减少热能,也需要保持远离潮湿,建筑所在场地是一个坡,建筑师设置了高架结构将建筑主体抬起,保持使用层在一个平面上。被抬高的住宅能够有效防止潮湿和害虫,保持通风与干燥。
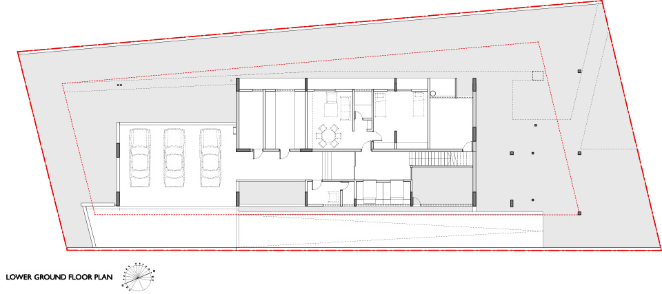
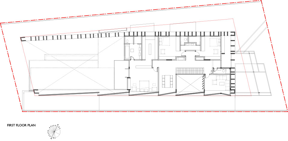
主要地面层是客厅餐厅与泳池,临时停车区,联系外部的高架桥;顶层是卧室;最底层有车库与服务区。
主要生活空间朝向泳池的一面能被全部打开,整个泳池尽端向树林开放,顶部和一面侧墙为混凝土格架造型,让阳光与风儿湿度进入空间,成就一个坐拥美景,融于自然,避开热和潮湿的素雅热带住宅。
|
已有 0 人参与
会员评论




