根据日照推演的退台造型,长庆油田北京办事处
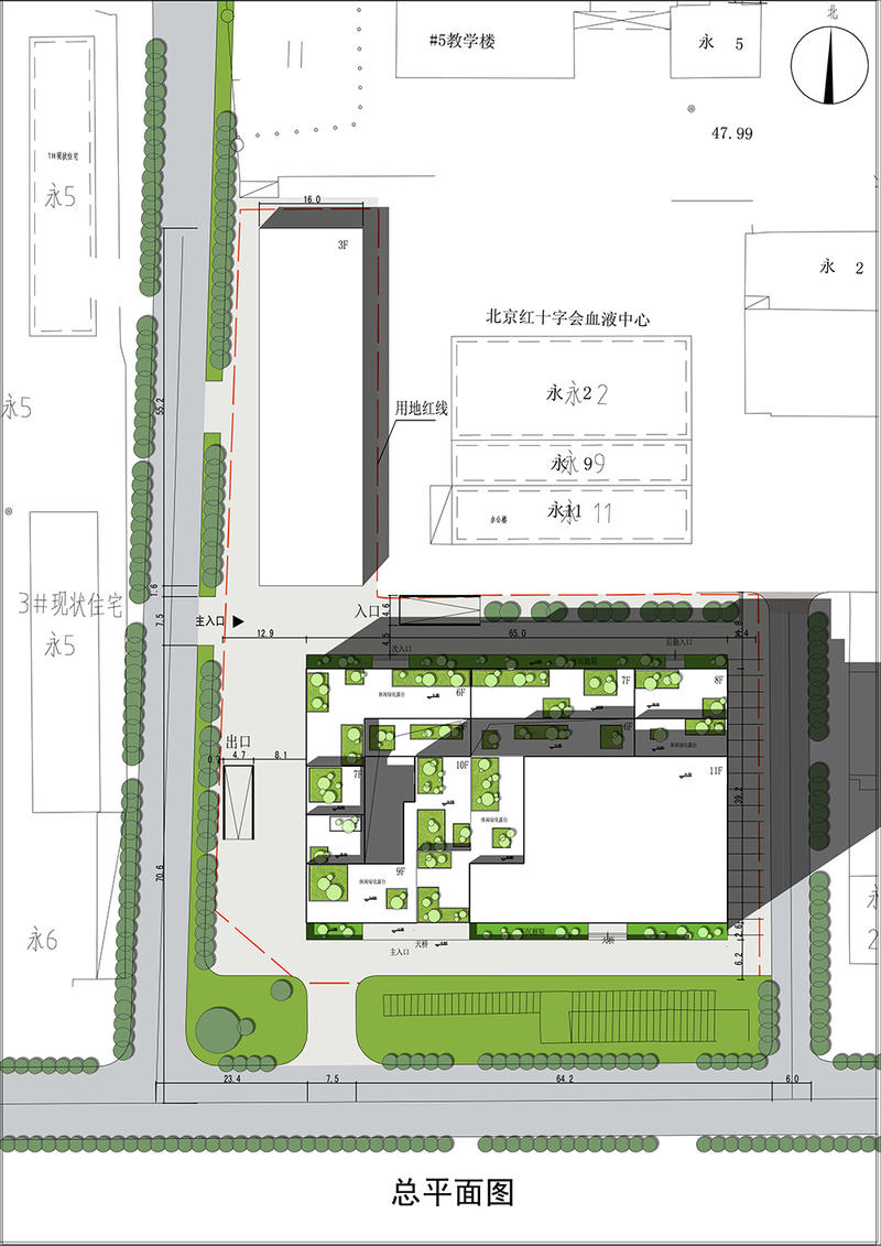
简介:本项目位于北三环中路,基地周边环境紧张,北面是血液中心,西面是住宅区,但南面是双秀公园。为了尽可能减少对周边建筑的日照遮挡。通过软件计算分析对周边建筑的日照遮挡,同时考虑南面公园等有利因素,推算出建筑 ...
|
本项目位于北三环中路,基地周边环境紧张,北面是血液中心,西面是住宅区,但南面是双秀公园。为了尽可能减少对周边建筑的日照遮挡。通过软件计算分析对周边建筑的日照遮挡,同时考虑南面公园等有利因素,推算出建筑的几何形体。
由于日照的因素,采用退台的造型。每个露台设计绿化露台,用户可以在露台上观景公园。不仅使住宿娱乐环境优雅,同时也提高了周围环境的档次。这样此建筑成为周边建筑的绿化环境。南北方向的下沉庭院不仅使地下一层的使用空间满足采光要求,同时也在入口处就有绿化围绕,让人进入建筑犹如进入一片绿色的森林的感觉。
设计机构:殊舍建筑/ 地点:北京/ 建筑面积:3.3万平米/ 设计团队:何红才 古双雄 何宏仕/ 设计时间:2011.1—2011.4 |
已有 0 人参与
会员评论




