VIA威盛电子办公大楼(VIA Corporativo)
简介:项目名称:VIA威盛电子办公大楼(VIA Corporativo) 建筑师:Guillot Arquitectos建筑事务所 项目地点:墨西哥,加利福尼亚半岛 项目面积:22,670㎡ 项目年份:2010年 摄影:Guillot Arquitectos建筑 ...
![]() 项目名称:VIA威盛电子办公大楼(VIA Corporativo) 建筑师:Guillot Arquitectos建筑事务所
项目地点:墨西哥,加利福尼亚半岛
项目面积:22,670㎡
项目年份:2010年
摄影:Guillot Arquitectos建筑事务所公关部
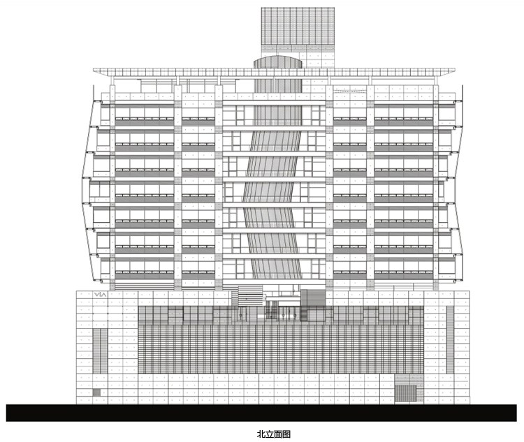
本次办公大楼的设计充分融入当地地理文脉并且以“高利用率和环保设计”为建造标准,最终办公大楼赢得了能源与设计领域的金奖。客户希望创建一种灵活性,基于此要求设计团队将办公区、服务区充分结合并将其共同设置在光线和通风良好的区域,不同楼层在各自的中央位置都有一块区域,这里是获得光线和通风的最佳地点,并且如同一个中转站将这些自然元素带入到内部的各个空间中。整栋办公大楼包括4层停车区域、1层商业区(内部包括餐厅、休息区、会议室)、行政区、天台花园和慢跑步道。
为了进一步实现“环保型设计理念”,设计团队尽可能使用本地建筑材料以及相应的节能设计,包括双抽水马桶、无水小便器等以便减少用水量,;大楼外幕墙采用的铝层可以吸收太阳光一定的热量,从而降低了30%的内部耗能。
|
已有 0 人参与
会员评论

























