热搜
活动
交友
discuz
建筑业界
首页
Portal
建筑人物
社区
BBS
建筑作品
社群
Group
建筑活动
会员日志
Blog
建筑培训
会员相册
Album
设为首页
收藏本站
建筑论坛
建筑圈子
QQ登陆
立即注册
登录
建筑时空
›
首页
›
建筑作品
›
室内设计
›
查看内容
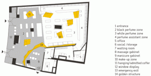
弗罗茨瓦夫Frivole Prestige perfumery香水店
2013-8-31 03:47
|
发布者:
ccbuild
|
查看:
214
|
评论: 0
简介:
弗罗茨瓦夫的这个香水店是由波兰室内设计师Theza设计的。
弗罗茨瓦夫的这个香水店是由波兰室内设计师Theza设计的。
收藏
邀请
路过
雷人
握手
鲜花
鸡蛋
相关阅读
•
日本Not Wonder时装品牌店
•
意大利储藏博物馆
•
华盛顿W酒店
•
美国Rosa Keller图书馆
•
拉斯维加斯四季酒店
•
旧金山四季酒店
•
伦敦谷歌公司总部
•
拉斯维加斯文华东方酒店
已有 0 人参与
会员评论
评论
相关分类
住宅建筑
宾馆酒店
科研建筑
工业建筑
商业建筑
医疗建筑
交通建筑
体育建筑
文化建筑
教育建筑
办公建筑
会展建筑
规划设计
室内设计
景观设计
智能工程
建筑保护
新建筑
别墅作品
博物馆作品
更新改造
返回顶部