建筑时空 首页 建筑作品 室内设计 查看内容

巴黎理想塔工作室

2013-8-31 02:43| 发布者: ccbuild| 查看: 82| 评论: 0

简介:巴黎建筑公司some设计完成的理想塔是法国时尚品牌理想堤岸的一个小工作室。商店正面以及工作室位于巴黎的时尚前沿第十一街安德森蒙特上。设计的目的在于给消费者突然插入的喜好以及让他们关注于结构,之前这家店是属 ...

巴黎建筑公司some设计完成的理想塔是法国时尚品牌理想堤岸的一个小工作室。商店正面以及工作室位于巴黎的时尚前沿第十一街安德森蒙特上。设计的目的在于给消费者突然插入的喜好以及让他们关注于结构,之前这家店是属于一个五金商的。

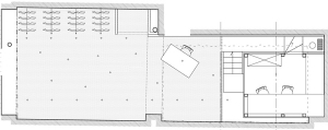
一个小塔,建立以及环绕在一个主要的楼梯井上,这个楼梯井垂直着连接了三层。作为一个办公室,会议空间,工作室还有仓库。这个塔楼隐藏了不太好看的次要功能同时拓展了有限的地面空间。浅色木质和冷色的包金箔直角金属管再添加对质感和原材料使长而窄的空间变得有趣生动,也让整个工作室涂上了一层自然的光色。一个悬浮的天花板配上一个软软的鸟型基本图案,悬挂在主要空间,伴在凹陷的灯光左右。

收藏 邀请

鲜花

握手

雷人

路过

鸡蛋

相关阅读

已有 0 人参与

会员评论

返回顶部