日本Sz 住宅
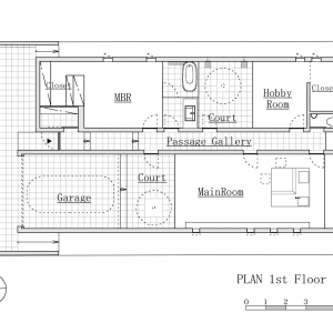
简介:Sz 住宅设计的委托人是一对三十岁左右的夫妇。按照客户要求,住宅要体现出开阔、活泼的风格。Miyahara 建筑工作室利用两个不同的庭院来达成客户需求。 住宅被四面间距不同的墙壁划分成三部分:私人区、公共区、" +α ...
|
Sz 住宅设计的委托人是一对三十岁左右的夫妇。按照客户要求,住宅要体现出开阔、活泼的风格。Miyahara 建筑工作室利用两个不同的庭院来达成客户需求。 建筑师:Teruo Miyahara/ Miyahara Architect Office
|
已有 0 人参与
会员评论




