英国伦敦Deloitte咨询公司
|
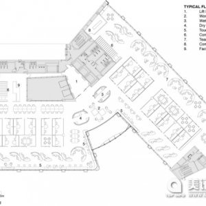
建筑师:Mackay + Partners 这不仅仅是一种巧合,访问新的全球管理顾问Deloitte咨询伦敦总部,就像是入住到五星级精品住宿环境。Mackay + Partners设计了一个引人注目的工作场所,就像打算用于一个酒店。 该设计需要引起Deloitte的工作人员能够充分利用建筑,促进员工之间的互动。计划通过发展'远景'表明Deloitte咨询房屋如何有助于传达品牌和推动业务。 '设计语言是光明和美好。颜色,加上自然因素,如木材和石头,再加上使用强大的图形,同时提供平静的内部和现代的感觉,' Mackay + Partners的高级设计师Gavin Harris解释说。 酒店的接待处,始于其四点八米落地的高度。水磨石地面外皮,形成了弯曲感觉的前台-为工作人员提供酒店设施,如旅行和住宿预订。占据大厅的是粉末涂层金属管里面的会议室和休息室,而基地的8层楼高中庭保留给一个有背光颜色变化的巨大的玻璃片:具有显示公司信息功能的互动等离子显示屏。 壮观的砂岩柱,地板嵌入LED照明,Vitra的椰子椅子和Flos 的Superarchimoon灯相结合加强了酒店的风格。 生动的红色手绘芦苇屏幕不仅掩盖了11套会议室,而且形成了一系列的小型会议室区域。领导层的工作区继续自然主题;电梯大堂特征的一座壁画树,同根地下水平和树梢在天空的第八层。盥洗室特征是巨大的图像的性质,以及特制的玻璃隔断(黄色为女孩,绿色为男孩),可丽耐洗涤槽和Philippe Starck设计的配件。 每个办公室地板上的中心cantered休闲座椅和两个吊舱-一个'湿'的茶道和一个'干'的复印。从这个中央空间辐射两翼的工作空间;核心,每个是一套可拆卸的办公室和会议室(来自Ergonom的 Unifor Progetto ),而办公桌在周边区域- Herman Miller的Abak系统-被安排在不同的配置,以适应不同大小的群体。 高层有不同的配置,用于执行办公室和会议区,可以戏剧性的俯瞰伦敦天际线。部件还包括一个定制的橡木接待桌子,一个戏剧性的区块的会议室。限量版的落地Alessi花瓶增添现代艺术的要素。
|
会员评论




