建筑时空 首页 建筑作品 工业建筑 查看内容

巴西Bortolini Móveis工厂

2013-8-30 19:48| 发布者: ccbuild| 查看: 1457| 评论: 0

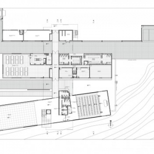
简介:这个项目是一个扩建项目,项目试图增加工厂的生产能力,项目基于体量上的细微差别,通过暴露混凝土与石材及木材的对比表达不同的建筑语言。项目占地18000平方米,包含管理区,销售区,展示厅,生产间和娱乐区。为了 ...

这个项目是一个扩建项目,项目试图增加工厂的生产能力,项目基于体量上的细微差别,通过暴露混凝土与石材及木材的对比表达不同的建筑语言。项目占地18000平方米,包含管理区,销售区,展示厅,生产间和娱乐区。为了提升管理环境的融合性和灵活性,设计采用了三个体量分工的形式,它们各有各的特点。

收藏 邀请
1

鲜花

握手

雷人

路过

鸡蛋

相关阅读

已有 0 人参与

会员评论

返回顶部