建筑时空 首页 建筑作品 住宅建筑 查看内容

日本山梨Outside In住宅

2013-8-30 19:51| 发布者: ccbuild| 查看: 215| 评论: 0

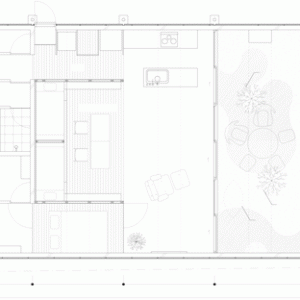
摘要: 玻璃屏幕笼罩着这个位于日本山梨县的房子前部,改造成一个有盖的室内花园餐厅。这是由日本建筑师Takeshi Hosaka设计的。

玻璃屏幕笼罩着这个位于日本山梨县的房子前部,改造成一个有盖的室内花园餐厅。这是由日本建筑师Takeshi Hosaka设计的。


鲜花

握手

雷人

路过

鸡蛋

相关阅读

已有 0 人参与

会员评论

返回顶部