日本春日井wbe住宅
摘要: 名古屋建筑工作室auau(akitoshi ukai)向我们展示出'wbe house',这个两层住宅位于日本春日井的一个人口稠密的居民区。这座小型住宅利用局部的墙壁来制造错觉,视觉上延伸了空间感。 虽然这座住宅严格意义上是两 ...
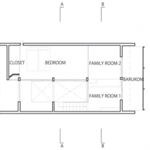
名古屋建筑工作室auau(akitoshi ukai)向我们展示出'wbe house',这个两层住宅位于日本春日井的一个人口稠密的居民区。这座小型住宅利用局部的墙壁来制造错觉,视觉上延伸了空间感。 虽然这座住宅严格意义上是两层,但是它的内部被分割为数层,为了不在整体分层的情况下明确不同的空间区域:孩子的房间被设在底层,分布从厨房到餐厅,用一个小台阶表示隔开。客厅以相同的方式隔开,由一系列阶梯最后延伸到卧室。这种阶段性的方法使居住者可以在观察室内空间时有开阔的视野。
|
已有 0 人参与
会员评论




