日本Matsuyama住宅
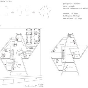
摘要: Dezeen设计事务所最近的一个项目是日本Matsuyama住宅,旨在打造可以饱览周围景色的房间。 通过各种明 确的结构,房间可以清楚地看到室外,同时确保建筑物的抗震要求。 洗手间可以利用帷幕隐蔽起来 。
Dezeen设计事务所最近的一个项目是日本Matsuyama住宅,旨在打造可以饱览周围景色的房间。 通过各种明确的结构,房间可以清楚地看到室外,同时确保建筑物的抗震要求。 洗手间可以利用帷幕隐蔽起来 。
|
已有 0 人参与
会员评论




