三一学院神学院扩建项目
简介:项目名称:三一学院神学院扩建项目(Trinity College Theological School Extensions) 建筑师:Peter Elliott Architecture + Urban Design 责任建筑师:Peter Elliott, Justin Mallia 设计团队:Felicity So ...
项目名称:三一学院神学院扩建项目(Trinity College Theological School Extensions)
建筑师:Peter Elliott Architecture + Urban Design
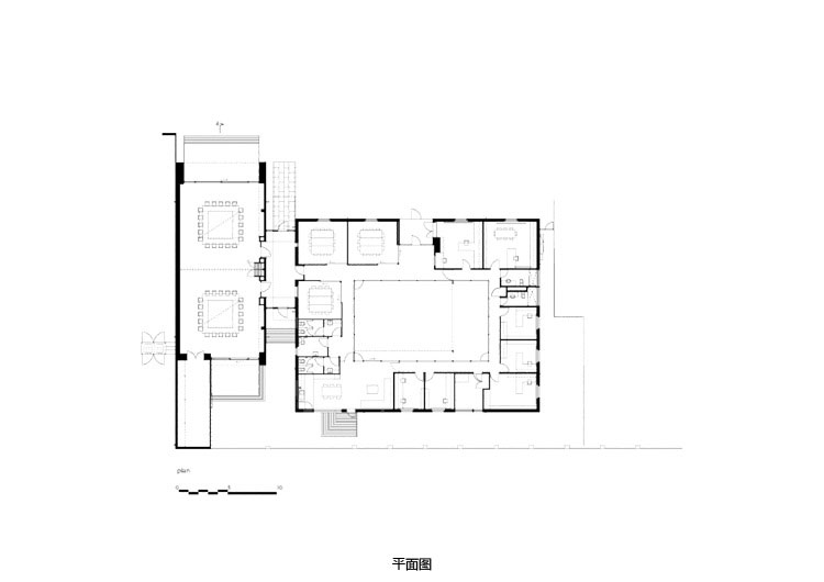
责任建筑师:Peter Elliott, Justin Mallia 设计团队:Felicity Soh, Julian Tuckett, Wil Goodsir 结构工程:Clive Steele & Associates 景观建筑师: John Patrick & Associates 项目地点:澳大利亚 墨尔本 建成时间:2010年 摄影:John Gollings 项目设计要求革新一座既有建筑并增建一座展厅结构建筑。既有建筑建于1960年,原来是住宅,在空间布局几乎没有改变的情况下,顺利的转型为一座教学建筑。既有的矩形平面布局中间有一个较大的中心庭院,所有房间均朝向中心庭院而建,整个建筑显得简单而现代,低调的隐没在层层树篱景观和大树之下。 建筑师保留了既有的庭院建筑并进行革新,此外在西部增建一座新的展亭结构的建筑,灵活的布置教学空间。展亭结构同既有建筑分离,但是通过一个紧凑的玻璃入口门廊同其相连。新建筑两个较大的屋顶灯罩结构可以控制光线和自然通风,同时也是一个体态醒目的空间装饰,从远处看起来好像是一座巨大的泛光花园围墙,安静的坐落在树篱之后。 扩建的新建筑加强了既有中心庭院建筑的隐密性,同时也通过朝北的巨大观景玻璃同北面的建筑形成对话。
|
已有 0 人参与
会员评论
项目名称:三一学院神学院扩建项目(Trinity College Theological School Extensions)



















