重庆大剧院
简介:项目名称:重庆大剧院 主设计:曼哈德冯格康、克劳斯棱茨 设计合伙人:尼古劳斯格茨 项目经理:福尔克玛西福斯 初步设计人员:海科提斯、莫妮卡凡弗特、罗伯特弗里德里希斯、马提亚斯伊斯梅尔、托比亚斯 ...
![]() 项目名称:重庆大剧院 主设计:曼哈德·冯·格康、克劳斯·棱茨
设计合伙人:尼古劳斯·格茨
项目经理:福尔克玛·西福斯
初步设计人员:海科·提斯、莫妮卡凡·弗特、罗伯特·弗里德里希斯、马提亚斯·伊斯梅尔、托比亚斯·约尔契克、多米尼克·雷、克里斯提安·达勒、尤莉亚·格龙巴赫
施工图设计人员:凯斯汀·施泰因法特、尼尔斯·德特雷夫斯、克努特·马斯、朱欢、杨·施托尔特、李铮昊
委托人: 重庆市江北嘴中央商务区开发投资有限公司
项目地点:中国,重庆
建筑面积:100000㎡
设计时间:2005年1月
建成时间:2009年6月
容纳人数:大剧场1744人〔可额外增加88人〕,中剧场873人〔可额外增加65人〕
手绘图:曼哈德·冯·格康
摄影:Hans-Georg Esch, Heiner Leiska
图纸:gmp
大剧院壮丽而雄伟地位于长江上游的尖岬上,面对重庆城市中心半岛。其地理位置的独特性、令人印象深刻的城市轮廓视野,加之雕塑般的建筑设计,使大剧院成为一个标志性建筑,一个世界各地文化交流的场所。
这座玻璃雕塑建筑位于一个石质基座上面。建筑平面和立面看上去有些随意轻松的海洋氛围,但是它们满足严格的功能要求。
大剧院不是那种由常规的墙面和窗面构成其外立面的典型建筑。从室内透射出来的灯光,太阳、云彩和水在多面玻璃上的折射,使大剧院在新颖而神秘的光的动感中不断变换身姿。当日光和阳光能够或应该射入建筑内部时,玻璃外壳是调节气候的表层,使室内和室外视线相互联系,达到内外交流的效果。应该隐蔽的室内空间,例如在舞台台塔,将由第二层实体外壳提供必要的遮蔽。
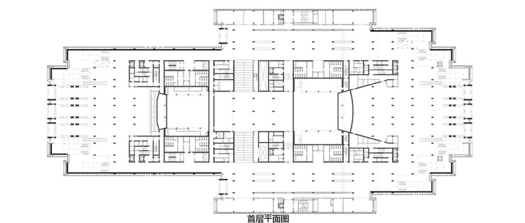
两个剧场,即大剧场和中剧场的剧场前厅位于纵轴线,类似于船的“龙骨线”上,以此分别在“船头”和“船尾”处构成入口区。在中部,即入口区“船中央”的位置是展示大厅,所有的门厅都可通往此地。各种各样的演出和活动可同时进行,并彼此独立。
观看艺术演出的观众由道路层面进入入口大厅,那里设有衣帽间、卫生间、问讯处、售票处、宣传工作办公间等设施。检票后,观众踏上庄严宽阔的楼梯进入剧场大厅层面的前厅。观众在前厅中可以观赏位于长江和嘉陵江对岸的重庆城区天际轮廓,以及科学中心和穿越江北城新区的美丽的林荫大道。拥有两个楼座的剧场几何形体为传统的马蹄形。在声学和视角方面,剧场的布局适于各种音乐和非音乐演出,包括歌舞演出、话剧、交响乐、室内乐和大型歌剧演出。
由主舞台、辅助舞台、侧台和子舞台构成的主体区域构成了大剧院观众与艺术家内部工作之间的界面。侧台和后舞台上面楼层设有排练厅设施。这些用房在公开演出时可通过电梯和楼梯由大剧场的前厅到达。后舞台和服务设施可以由“大剧场”和“中剧场”共享。而两个剧场在空间布局上是功能彼此独立的区域。
大剧院的基座层设有大面积的餐饮设施。同时可利用面向城市林荫道的大型平台作为室外餐饮区。旅游者可以在这里逗留、休息并欣赏重庆城市的美景。由于餐饮设施既可由大剧院的门厅也可由室外进入并使用,因此餐饮设施可独立于剧场而单独运营。餐饮区对面设有一个附设前厅的多功能厅。多功能厅也拥有观赏嘉陵江对岸的全景视野。多功能厅经露天阶梯与大剧院广场连接,因而可独立使用,不受各类演出活动的影响。基座层的的南侧设有两层地下停车库。大剧院的送货交通自北面进行。舞台设备区、餐饮区和大型客车停车场交通实行分流,各有自己的车辆出入口,以避免互相干扰。机电设备和舞台仓库库房以及厨房备餐冷藏设施和垃圾存放设施也设在基座层。
大剧院的上部楼层根据功能要求作了相应的布局。剧院工作人员和艺术家从广场层面的两个专用入口乘电梯和楼梯进入办公间和更衣室。更衣区、道具库房和舞台制作间位于大剧院8 层,即舞台层面。其上方的16 层设有其他制作间和道具用房。行政管理用房和小型工作间位于22 层。26 层是大剧院的顶层,许多练习室和排练厅均设在这里。该区域是开放区域,人们可以从大剧场的前厅到达这里。
重庆大剧院可通过三条道路(北面、西北面和南面三条道路)直接到达。因此,可实现各种交通工具,如公共汽车、出租车、小汽车、货车的分流,并形成一个总的交通体系。大剧院建筑物的每一侧都设有单独的下客区和出入口,以保证交通的畅通无阻。
观众可从四面八方以各种方式接近大剧院。靠水一侧林荫大道的延伸处设有渡轮码头,实现水上交通工具的停靠。大剧院南侧设有两条通往地下停车库的出入道路。入口区设有电梯和楼梯直接通往上面的大剧场前厅。重庆大剧院周围广场主要供行人使用。只有南段可作为出租车和贵宾下客区使用。因此,重庆大剧院没有背面。建筑物的四周和所有立面都向观众开放,使其可进入建筑。
感谢gmp将项目介绍和图片授权中国建筑报道网发行。
Appreciation towards gmp for providing the description and all photos .
|
已有 0 人参与
会员评论



















