新秀衣幼儿园(New XIUYI Kindergarten Proposal )
简介:项目名称:新秀衣幼儿园(New XIUYI Kindergarten Proposal ) 建筑师:中国城市建筑第七工作室(Studio 7 of Urban Architecture China) 项目地点:中国,昆山 设计团队:杨立峰Yang Lifeng (设计主管), ...
项目名称:新秀衣幼儿园(New XIUYI Kindergarten Proposal )
建筑师:中国城市建筑第七工作室(Studio 7 of Urban Architecture China)
项目地点:中国,昆山
设计团队:杨立峰Yang Lifeng (设计主管),周俊刚 Zhou Jungang (项目经理), Yin Shun, 李耀京Li Yaojing, 尹珊红Yin Shanhong, 周波辉Zhou Bohui
占地面积:14,535sqm
楼层面积:15,704sqm
操场面积:1861sqm(户外面积)
最大高度:24米
容纳学生数量:1200人
教室数量:30个
建设进程:计划中
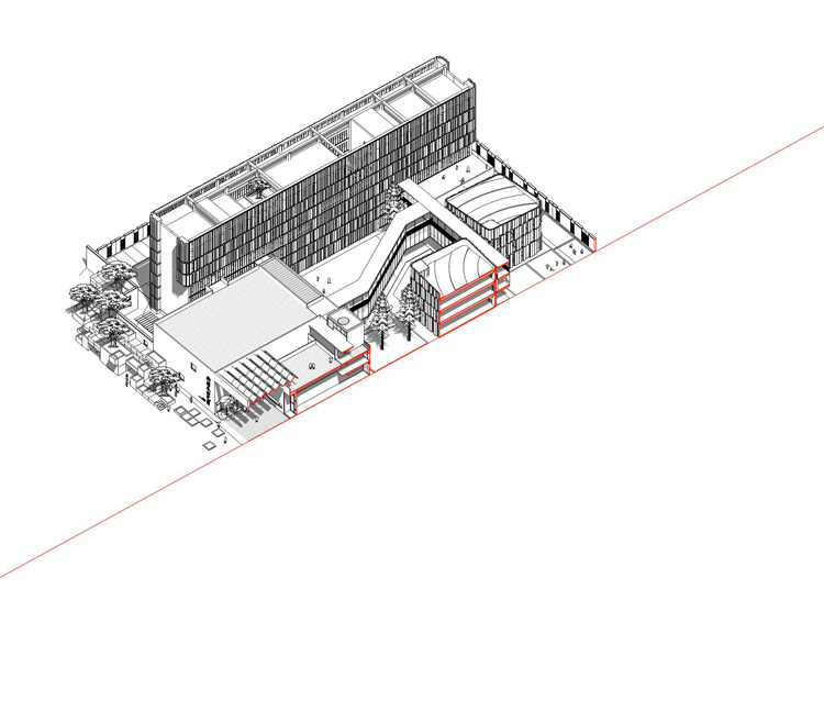
由中国城市建筑第七工作室竞标成功的昆山“新绣衣幼儿园项目”旨在更密切地加强城市建筑与当地城市环境的融合度。这一扩建项目奖30个教室分布于9栋家主中并形成各自独立又相互联系的整体。整个幼儿园希望为孩子们创造一个更加宜居的环境,不但要满足幼儿园自身寓教于乐的场地要求,还要结合当地的公共环境进行改造。
通过建造崎岖蜿蜒的小路奖幼儿园的各个活动单元与当地公共区域相连接,这一灵感来源于著名的苏州四大园林之一“网师园”的布局设计。整个布局就如同在森林中漂浮着的一个公路带,让置身于其中的人进过每一处都有不一样的情感体验。
|
已有 0 人参与
会员评论
项目名称:新秀衣幼儿园(New XIUYI Kindergarten Proposal )















