热搜
活动
交友
discuz
建筑业界
首页
Portal
建筑人物
社区
BBS
建筑作品
社群
Group
建筑活动
会员日志
Blog
建筑培训
会员相册
Album
设为首页
收藏本站
建筑论坛
建筑圈子
QQ登陆
立即注册
登录
建筑时空
›
首页
›
建筑作品
›
文化建筑
›
查看内容
特温特(Twente)大学校园建筑
2013-8-29 21:58
|
发布者:
ccbuild
|
查看:
172
|
评论: 0
简介:
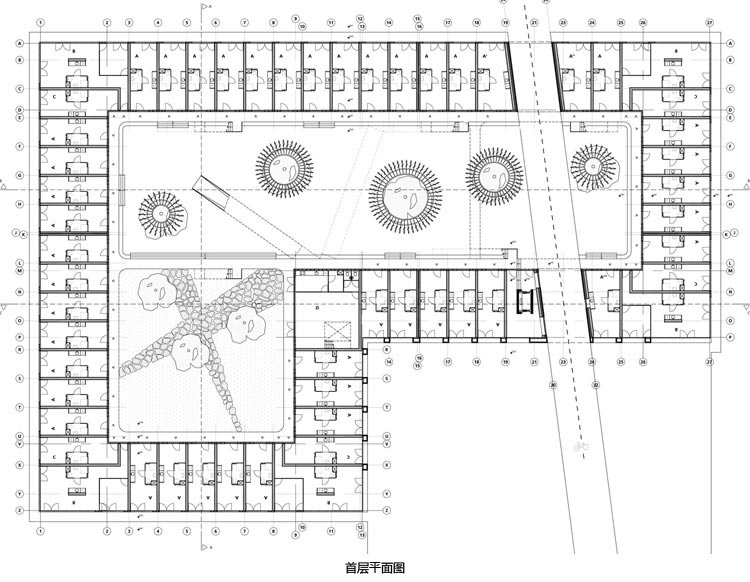
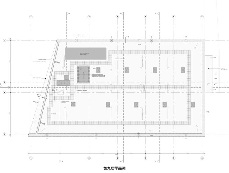
项目名称:特温特(Twente)大学校园建筑 建筑师:Arons en Gelauff建筑事务所 项目地点:荷兰,特温特 两个学生住房建筑目前在Architecten Gelauff安诺特文特大学。一个外部、内部与另一建筑具有强烈 ...
项目名称:特温特(Twente)大学校园建筑
建筑师:Arons en Gelauff建筑事务所
项目地点:荷兰,特温特
两个学生住房建筑目前在Architecten Gelauff安诺特文特大学。一个外部、内部与另一建筑具有强烈对比的三层建筑,在西北立面上设计了攀岩墙。
这栋九层楼高的建筑位于体育场边上。超市和美发厅与其在同一侧。一楼的宿舍围绕着屋顶的公共平台。而在建筑面向体育场一侧的墙上设置了攀岩墙。
收藏
邀请
路过
雷人
握手
鲜花
鸡蛋
相关阅读
•
阿布扎比古根海姆艺术馆
•
Arabista Ribera School
•
拉奎拉礼堂(Auditorium in L Aquila)
•
伦敦水上运动中心
•
二等奖方案——“天国的阶梯”中学
•
PUC-RS图书馆
•
北京某科技博物馆
•
帕莱索一处临时音乐学校
已有 0 人参与
会员评论
评论
相关分类
住宅建筑
宾馆酒店
科研建筑
工业建筑
商业建筑
医疗建筑
交通建筑
体育建筑
文化建筑
教育建筑
办公建筑
会展建筑
规划设计
室内设计
景观设计
智能工程
建筑保护
新建筑
别墅作品
博物馆作品
更新改造
返回顶部