建筑时空 首页 建筑作品 文化建筑 查看内容

St Alfred’s Church

2013-8-29 21:56| 发布者: ccbuild| 查看: 183| 评论: 0

简介:项目名称:St Alfreds Church 设计者:Studio B Architects 设计团队:Fred Batterton, Clare Andrew, Tom Alves, Andrew Smith 结构:Barry Roben, Irwin Consult 景观:Peter Boyle 项目地点:澳大利亚 ...
项目名称:St Alfred’s Church
设计者:Studio B Architects
设计团队:Fred Batterton, Clare Andrew, Tom Alves, Andrew Smith
结构:Barry Roben, Irwin Consult
景观:Peter Boyle
项目地点:澳大利亚 维多利亚
建筑面积:1516㎡
建成时间:2009年
摄影:Aaron Pocock

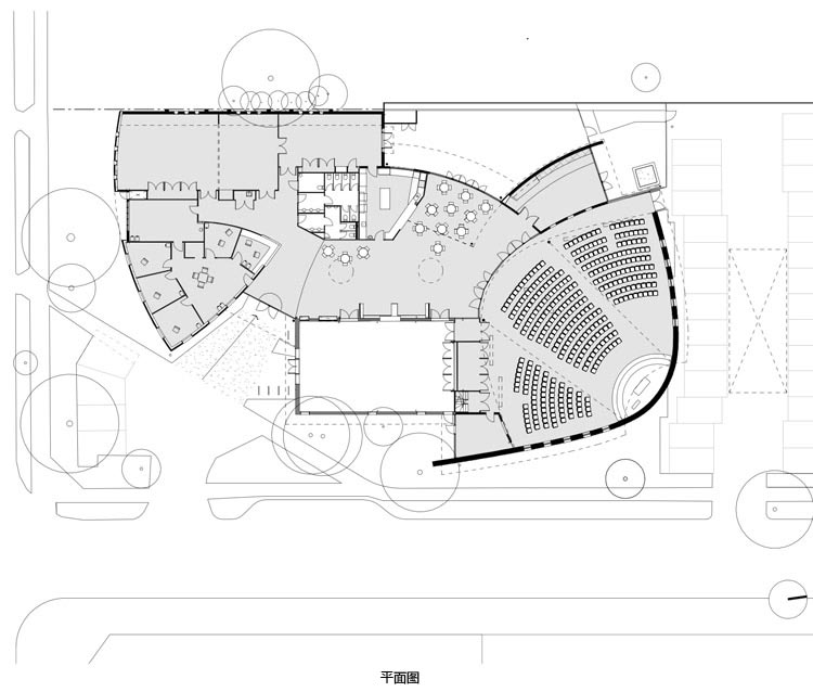
项目位于墨尔本郊外植物茂盛的环境中,集教堂和教育为一体的建筑,其规划和设计均平易近人。

时间证明,项目是一座名副其实的创新性和实用性建筑。

收藏 邀请

鲜花

握手

雷人

路过

鸡蛋

相关阅读

已有 0 人参与

会员评论

返回顶部