无锡惠山展示中心
简介:项目名称:无锡惠山展示中心 设计者:同济大学建筑设计研究院-原作设计工作室 主创设计:章明、张姿、李雪峰、周文文、孙承禹 设计类别:展览馆 建设地点:江苏 无锡惠山 建成时间:2008年7月 摄影:张 ...
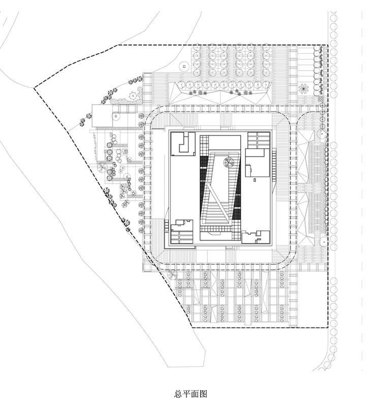
![]() 项目名称:无锡惠山展示中心 设计者:同济大学建筑设计研究院-原作设计工作室 主创设计:章明、张姿、李雪峰、周文文、孙承禹 设计类别:展览馆 建设地点:江苏 无锡惠山 建成时间:2008年7月 摄影:张嗣烨、章明 从发展趋势而言,城市规划展示中心(馆)已跳脱于一般意义上的展览建筑,形成全新理念导向下的独立的建筑类型。它不仅仅是承载着城市演变历史的物质容器,也不再局限于成为支撑城市精神的纪念碑。它以更为公共与开放的积极姿态融于城市的公共生活,以更为多样性与复合性的展示方式诠释人与城市的深层关系,以更为特征性与关联性的语言智慧地体现城市的内在性格与精神特质,从而真正成为城市文化精神的栖息之所。 无锡惠山展示中心的设计正是源自于这样的设计理念,它维系了一个充满内在关联的线索,以行云流水般的形态语言构建出洋溢理性光芒与灵动风采的建筑,它如同充满智慧之光的城市之眼,以睿智从容的心态守望着这座新兴的明日之城。展示中心位于无锡惠山新城核心区,基地北侧政和路与东侧惠山大道分别连通惠山中心区与无锡市区,景观水系沿基地南侧蜿蜒流淌而过,这些元素形成的城市脉络将成为解读建筑与城市潜在关联的信码,并在设计过程中成为建构的基础与扭转性启发。
|
已有 0 人参与
会员评论






















