流水别墅(Fallingwater House)
简介:项目名称:流水别墅(Fallingwater House) 建筑师:弗兰克劳埃德赖特 项目地点:美国,匹兹堡 项目时间:1936年-1939年 流水别墅是现代建筑的杰作之一,它位于美国匹兹堡市郊区的熊溪河畔,由FL赖 ...
项目名称:流水别墅(Fallingwater House)
建筑师:弗兰克·劳埃德·赖特
项目地点:美国,匹兹堡
项目时间:1936年-1939年
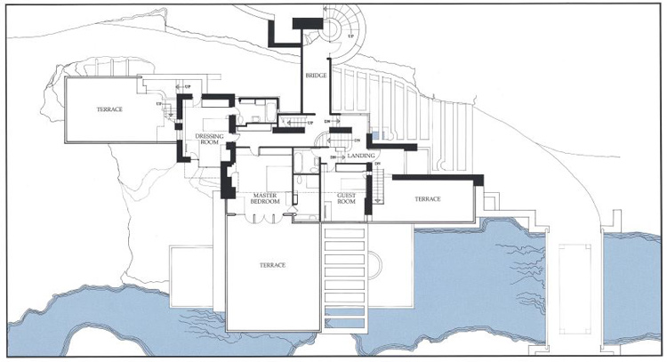
流水别墅是现代建筑的杰作之一,它位于美国匹兹堡市郊区的熊溪河畔,由F·L·赖特设计。别墅的室内空间处理也堪称典范,室内空间自由延伸,相互穿插;内外空间互相交融,浑然一体。流水别墅在空间的处理、体量的组合及与环境的结合上均取得了极大的成功,为有机建筑理论作了确切的注释,在现代建筑历史上占有重要地位。
流水别墅是赖特为考夫曼家族设计的别墅。在瀑布之上,赖特实现了“方山之宅”(house on the mesa)的梦想,悬的楼板锚固在后面的和自然山石中。主要的一层几乎是一个完整的大房间,通过空间处理而形成相互流通的各种从属空间,并且有小梯与下面的水池联系。正面在窗台与天棚之间,是一金属窗框的大玻璃,虚实对比十分强烈。整个构思是大胆的,成为无与伦比的世界最著名的现代建筑。
从流水别墅的外观。我们可以读出那些水平伸展的地坪,要桥、便道、车道、阳台及棚架,沿着各自的伸展轴向,越过谷而向周围凸伸,这些水平的推力,以一种诡异的空间秩序紧紧地集结在一起,巨大的露台扭转回旋,恰似瀑布水流曲折迂回地自每一平展的岩石突然下落一般,无从预料整个建筑看起来象是从地里生长出来的,但是它更象是盘旋在大地之上。这是一幢包含最高层次的建筑,也就是说,建筑已超越了它本身,而深深地印在人们意识之中以其具象创造出了一个不可磨灭的新体验。
别墅这个建筑具有活生生的、初始的、原型的、超越时间的质地,为了越过建筑史的诸多流派,它似乎全身飞跃而起,坐落于宾夕法尼亚的岩崖之中,指挥着整个山谷,超凡脱俗,建筑内的壁炉是以暴露的自然山岩砌成的,瀑布所形成的雄伟的外部空间使落水山庄更为完美,在这儿自然和人悠然共存呈现了天人合一的最高境界。
|
已有 0 人参与
会员评论
项目名称:流水别墅(Fallingwater House)

















