道格拉斯住宅
摘要: 项目名称:道格拉斯住宅 建筑师:理查德迈耶 项目地点:美国 春之港 项目时间:1971年-1973年 道格拉斯住宅位于密歇根湖畔一处雄伟、陡峭、孤立的坡地上,四周满是密实的针叶林。从公路到湖边的地势 ...
项目名称:道格拉斯住宅
建筑师:理查德·迈耶
项目地点:美国 春之港
项目时间:1971年-1973年
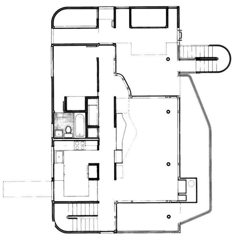
道格拉斯住宅位于密歇根湖畔一处雄伟、陡峭、孤立的坡地上,四周满是密实的针叶林。从公路到湖边的地势非常陡峭,以至于整座住宅看起来就像掉落于此似的,一座机械化的物体矗立在这片纯自然的环境中央。建筑的白和水的蓝、树的绿相映成趣,展开一场充满戏剧性的对话。而天空则使整栋住宅更加醒目。自然和建筑形成一片和谐融合的景色。
从很多方面看,道格拉斯住宅都可以说完成了一个由史密斯住宅开始的系列。在这一系列的住宅中,入口通常都被处理成从建筑边界上延伸出来的形式。在道格拉斯住宅所处的场地里,非常陡的斜坡地形使住宅的入口只能设在顶层平面。因此这种看起来似乎直接横越正面顶部的引桥形式再次得到应用。从公路上惟一能看见的是屋顶和顶层的部分。只有穿过引桥才能看到五层高的住宅和4500平方英尺的起居空间。一条更低的桥直接将起居层和下面的层联系起来。再经由一系列的台阶、狭窄通道、爬梯,最后到达底层的湖边。
|
已有 0 人参与
会员评论
项目名称:道格拉斯住宅














