ABBANK树大厦(Trees Building)提案
简介:项目名称:ABBANK树大厦(Trees Building)提案 建筑师: Vo Trong Nghia建筑事务所 项目地点: 越南,岘港 总建筑面积:2358㎡(8层) 建筑时间:2012-(细节设计阶段) 首席建筑师: Vo Trong Nghi ...
项目名称:ABBANK树大厦(Trees Building)提案
建筑师: Vo Trong Nghia建筑事务所
项目地点: 越南,岘港
总建筑面积:2358㎡(8层)
建筑时间:2012-(细节设计阶段)
首席建筑师: Vo Trong Nghia, Masaaki Iwamoto
委托人:ABBANK
项目:Brank银行办公室
追溯到历史,甚至有些建于法国殖民时期的越南银行已经使用了这个设计。 我们为ABBANK新的分公司的想法是想把这种传统的建筑与当代绿色建筑相结合,并把它大胆地融入21世纪的建筑风格。
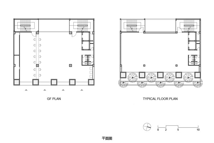
建筑立面是由一排排巨大的两倍高度的柱子构成,其目的不仅是作为建筑承重结构,也可在其顶部种植大树。 为了抵御岘港的强风,树木需要根深蒂固。
高大的柱子层层排列在建筑的四个楼层,以便于所有的树木可以拥有足够的空间向上生长。这样布置树木可以让任何地方的人们透过树叶观赏城市景观。这样的设计使得建筑立面看起来像一个垂直的森林。不同于普通的屋顶花园,人们可以在街道看到Trees Building,享受绿色景观带来的乐趣。建筑剖面设计的创意甚至可以种植比平地上更多的树(至少150%)。
由于快速发展和城市化进程,大量树木被砍伐,越南人民正在逐渐远离自然。 这种情况的背景下,Trees Building是一个可以让绿地重返地球的挑战。这个建设预计会即将在2013年展开。
|
已有 0 人参与
会员评论
项目名称:ABBANK树大厦(Trees Building)提案










