武汉华侨城运动生活中心
简介:项目名称:武汉华侨城运动生活中心(WuHan OCT Sports Center) 建筑师:张应鹏、九城都市建筑设计有限公司 设计团队:于雷、季其勇、陆坪、李红星、张晓明 项目地点:中国,武汉 建筑面积:13990㎡ 设 ...
![]() 项目名称:武汉华侨城运动生活中心(WuHan OCT Sports Center) 建筑师:张应鹏、九城都市建筑设计有限公司
设计团队:于雷、季其勇、陆坪、李红星、张晓明
项目地点:中国,武汉
建筑面积:13990㎡
设计时间:2011年2月-2011年5月
项目时间:2012年3月
摄影:姚力
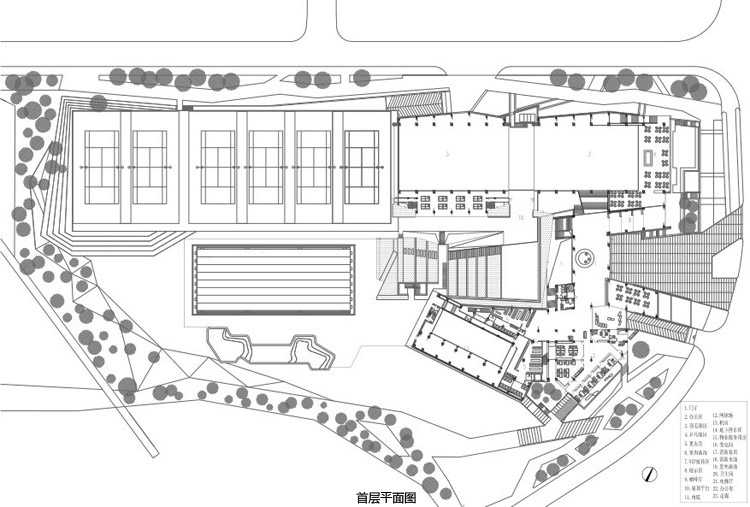
华侨城运动生活中心是武汉华侨城东湖社区的配套会所,基地位于东湖湖滨景观带内。运动会所功能包含两个室内羽毛球馆、一个室内游泳馆和一系列其他运动设施。
场馆围绕入口广场和下沉庭院形成H型布局,较大的体量得以化整为零。通过地形塑造我们在基地内部设置了一系列的半层高差,居于不同标高之上各场馆间的相对尺度更为接近;建筑屋面和墙面大面积采用种植屋面和垂直绿化技术,使得建筑整体形态与湖滨景观带的关系更为融合。
|
已有 0 人参与
会员评论



















