美国科罗拉多州nove-ii别墅:Studio B
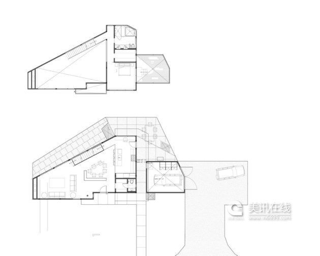
简介:建筑师:Studio B Architects 建筑地点:阿斯彭,科罗拉多州,美国 场地面积:10800平方英尺 项目面积:3200平方英尺 项目年份:2010 摄影:Derek Skalko & Raul Garcia 这是一块小型的楔形残留场地,由于场 ...
|
建筑师:Studio B Architects 这是一块小型的楔形残留场地,由于场地的限制和复杂性,使得它空置了很多年。它有两面临街,场地下面有阿斯彭市的主要水电线。 考虑到场地所受到的限制和其复杂度,建筑师设计出一个石头立面的“雕塑”住宅,正好暗示了住宅主人的艺术收藏爱好。 3200平方英尺的项目面积分别布置在上层的私人区、中间的公共区和下层的客人区。住宅外部使用的包括轻质的石灰岩石板系统和铝制门窗。这个项目需要提前18个月申请建造,建造预计耗时15个月。
编译:美讯在线-建筑中国网
|
已有 0 人参与
会员评论


















