atelier V:美国加利福尼亚海风公寓
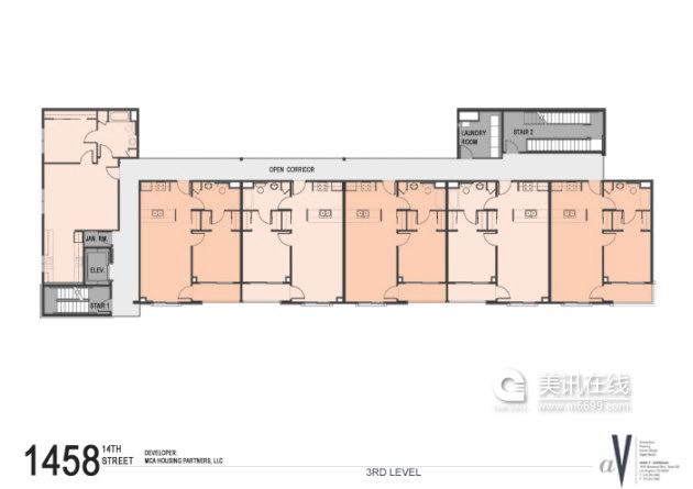
建筑设计:atelier V 这座倍受期待的廉价老年人公寓终于完工,它位于美国加州圣莫尼卡14号大街1458号,被称之为海风公寓。前天,圣莫尼卡市的政府官员和显要人士参加了建筑的完工庆典,其中包括议员Richard Bloom、圣莫尼卡市住房和经济发展部的官员和MacFarlane Costa Housing Partners公司总裁Michael Costa(项目所有者)。该建筑于2006年2月就获得了建筑审核务委员会的批准,但是直到2008年秋季才开始动工。 公寓位于百老汇大街和14号大街的交叉路口上,占地面积7500平方英尺。公寓共4层,包括20间住宅,一楼还有1800平方英尺的商业区,地上和地下都有停车场。住房单元的大小差不多一样,面积是600平方英尺,每层共用一条通道。每间房内都配有露天阳台。公寓的设计不仅具有密度住宅的优点,同时还解决了老年人对停车的需求。 这是一座V-A型的4层公寓,采用TJI建筑结构和经典结构墙设计。一层的商业区采用钢铁结构,来支撑14英尺厚的钢筋混凝土板。建筑外壁所使用的材料用水泥灰泥、波纹金属和不锈钢索。建筑师希望打破低收入家庭的住宅设计标准,提供一些更好的建筑设计。
编译:美讯在线-建筑中国网
|
会员评论























