HVDN:荷兰阿姆斯特丹de Albatros住宅楼
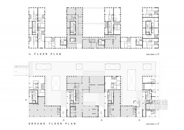
建筑设计:HVDN 地点 阿姆斯特丹Van Hasseltweg周围区域正在被开发,de Albatros建筑坐落在现有的一个小型“花园村”住宅区之间,位于新的Noord/Zuidlijin地铁站周围。 雕塑 Albatros建筑设计中面临的最大挑战就是协调这个大规模的项目同周围住宅建筑,使之能够和谐统一。因此,新的建筑不应该成为这一街区内的一个巨型障碍物。于是设计师决定将项目分成四栋楼建造,这四栋楼共同拥有一个方形的底座。 方形底座中建造的所有商业和社区设施都以服务为导向,它的高度同周围建筑一致。四个建筑中总共建有130个住宅,四个建筑的内部规划和形状各有不同。每个住户在自己家中都能够欣赏到屋外的美景同时享受到自然的光线。整个的建筑看起来像是一个巨大的雕塑作品。 方形底座 一层入口处的设计在街道和内部花园之间形成了一种视觉上的连接。这些连接加上面积稍小的方形底座,可以使太阳光线照射到建筑北面区域,同时可以减少整个建筑的总体长度感。 位于建筑南面的公有苔藓和地衣花园种植在木制的平台之上,平台上有与车库相通的开口,光线通过这里可以进入到车库中。在夜晚,花园会由悬挂的彩灯照亮。通往电梯和楼梯井的走廊位于花园的侧面,这种设计增加了花园在整个开发工程中的影响力。
编译:美讯在线-建筑中国网
|
会员评论





















