Laurens & Loustau:法国克瑞普斯健身中心
简介:建筑设计:Laurens & Loustau Architects 建筑地点:克瑞普斯,图卢兹,法国 项目团队:Marc Laurens, Pierre Loustau 客户:Ministère de la Jeunesse et des Sports 工程:Ingerop Sud-Ouest 项目面积:2400平米 ...
|
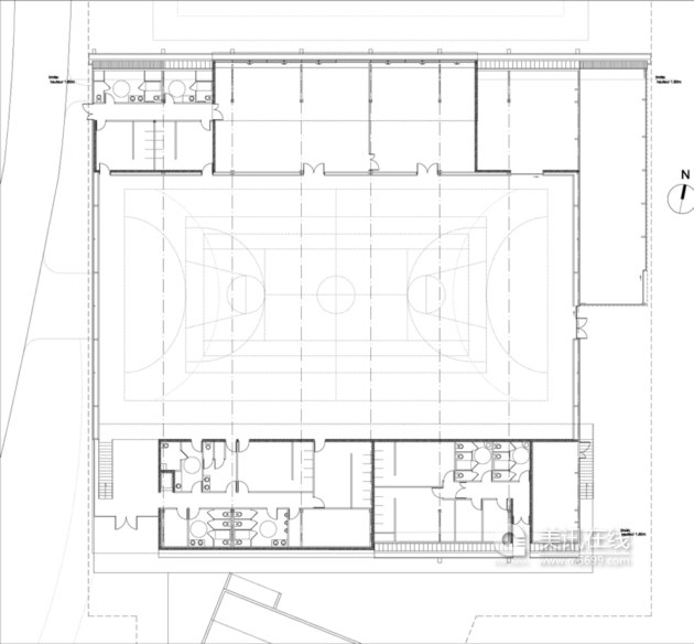
建筑设计:Laurens & Loustau Architects 原来的室内网球场被拆掉,新建的健身中心使用一种两色材料:金色金属涂层覆盖了建筑大部分外表,而同种黑色的金属涂层则是一种突然的新元素。建筑顶上的4条不连续的直线开口能让顶部自然光线照入。 健身中心入口位于西南角,入口的设计是逐步离开地面,形成一种欢迎人们到来的气氛。建筑北面设有大型玻璃开口,让举重室和公园在视线上相通。建筑外表的连续性让建筑达到一种视觉同一,从而突出建筑和自然环境的和谐一致。
编译:美讯在线-建筑中国网
|
已有 0 人参与
会员评论



















