RWTH aachen university设计的南非的约翰内斯堡地区的“科学中心”
简介:摘要: 几年前,欧洲和南非的非政府组织承接了一个项目,是在莫提科南部的约翰内斯堡,构建一个技能学院,为当地的贫困儿童提供自然科学和英语的教育。此外,所有的设计都将由欧洲各学院的建筑师承接,建设将由志愿者与当 ...
|
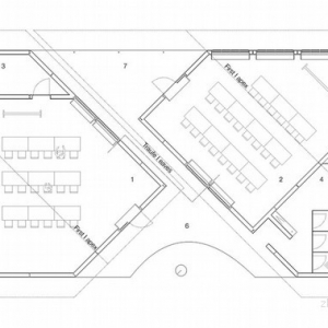
摘要:几年前,欧洲和南非的非政府组织承接了一个项目,是在莫提科南部的约翰内斯堡,构建一个技能学院,为当地的贫困儿童提供自然科学和英语的教育。此外,所有的设计都将由欧洲各学院的建筑师承接,建设将由志愿者与当地社区的学生协作共同完成。
建筑设计:RWTH aachen university
最近添加的科学中心,其中有两个教室致力于生物和化学,一个大厅是用来支持程序的。这个概念把普通矩形的足迹,切成一个开放的公共走廊,让这个走廊穿过中心地带,划分成两个折叠性的屋顶。一个钢框架结构所支撑的灌浇混凝土的填充是传统的德国绝缘技术,可以创建一个单片的抗热性能。大的可操作的空间允许足够的光线和空气通过,而金属屋顶悬岩提供了足够的阴影,分离了建筑物的结构与形式,允许热空气逃脱。
译者:筑龙网 毛毛 |
已有 0 人参与
会员评论
相关分类
最热文章
最新文章









