Driendl Galzigbahn设计的因斯布鲁克缆车站
简介:摘要: 这是由Driendl Galzigbahn设计的因斯布鲁克缆车站。新的地基的形式使得 车站 直接进出的运输功能得到实现。这样的材料选择体现了可持续性和高透明度的特性。建筑的空间构架,从管道配件到其它材料的选择,都 ...
|
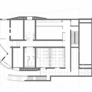
摘要:这是由Driendl Galzigbahn设计的因斯布鲁克缆车站。新的地基的形式使得车站直接进出的运输功能得到实现。这样的材料选择体现了可持续性和高透明度的特性。建筑的空间构架,从管道配件到其它材料的选择,都充分考虑当地盛行风和天气状况。
建筑设计:Driendl Galzigbahn
整个建筑阻挡风,雨,雪的效果颇佳。移动的建筑材料,巧妙的简约主义令Galzigbahn彰显了灵动的特性。一个船型的门庭设计,一个巨大的车轮引导客人们上到一层的地面。机舱转到相反的方向,乘客得到便利,连同平底和浮子以上的屋顶景观,都可以通过搪瓷空间观看到Galzig山。该计划将建设一个缆车,包括一个公共空间,还有需要付费的书桌存储柜,物流区,废物管理设施区,车库区将被设计在地窖中。主体是一个巨大的混凝土基座,南北的两面墙和一个玻璃的顶部覆盖组成的。这种天气保护外衣是跨越的,自己支撑的,整个建筑中,由于一个新的圆顶和一个三脚架支撑,则不需要任何连接点。使用空间衔架,在最大限度内优化了酒吧建筑的稳固。28个小屋/每24人一个小屋,最高速度6米每秒。
译者:筑龙网 蝈蝈 |
已有 0 人参与
会员评论
相关分类
最热文章
最新文章









