|
摘要:这个“底特律隆重开放”设计的目的,是希望创造在这座城市中心建造一个7天24小时无休的、充满活力与人气的地区,并且以Woodward Avenue Corridor零售商店为实现的催化剂。这个方案由多名设计师共同合作完成,分别是Chung Whan Park, Terry Park, Jeong Jun Song, Hyuntek Yoon和Kyung Jae Yu。

建筑设计:Chung Whan Park, Terry Park, Jeong Jun Song, Hyuntek Yoon和Kyung Jae Yu 项目地址:美国,底特律 设计时间:2013年
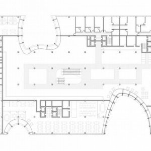
他们希望通过与周围地区的城市基础设施的联系,为这里带来不间断的活力、人群和令人难忘的底特律城市印象。尽管在过去的几十年里,底特律市中心的人口和活动都有减少,但是最近的文化设施(如剧院、体育场)、写字楼和商业设施的涌入都给这个地区带来了前景乐观的发展空间。但是由于Woodward Corridor商店营业时间的限制,还没能完全实现24小时无间断保持活力。这个项目希望完全唤起底特律市中心的活力,所以在原有文化设施的基础上,鼓励各种商业零售店延长营业时间。这里已经有了24小时开门的Arcade百货商店,和延长了开放时间的艺术画廊。 Woodward Avenue建成后,连同原有的单轨系统,都将与未来的轻轨线联系。这个“隆重开放”项目将会改变过去充满活力的J.L.哈德逊商业地区,转变成一个充满活力的居住、工作、游览、娱乐和投资的社区。这里还会将底特律市中心和其他地区联系在一起,吸引更多的当地人和游客来这个新的城市中心。这个区域在南部商业区和北部中心文化艺术区之间。通过联系每个地区不同的活动和场地,为这里同时带来不同的能量和活力。除了大型商店Woodward Avenue,为了充实这里,很重要的一点就是重建城市走廊,加强建筑主轴线。现有的单轨和新规划的轻轨系统都会经过这个地区,为这里送来了大量客流,这个建筑也成为两个交通系统的交汇点。综合考虑了以上方面,本设计定位将成为底特律繁华热闹的新中心,连接着城市中的各空间。 这个“底特律隆重开放”的项目主要包括:通过刺激商业活动和鼓励客流量,创造一个独特的公共空间,吸引更多的商户和消费者。延长报刊亭、商场、餐厅、酒吧的营业时间多一些季节性活动和节庆活动,打造良好的购物聚会活动体验,这样人们无论日夜都会选择到这里来。提供优质的艺术和设计工作和公共展示空间,方便这个地区的教育机构、艺术社区和游客参观。重塑历史性的大规模旗舰店和这里的时尚、艺术和设计氛围。这里还为逐渐增加的人口提供了253户住宅和32898平方米的A级办公空间,改善现状的居住和办公空间。由于位于市中心的地理位置,这里的办公、住宅、商店和公寓的租金都很贵。节点二主要是通过连接两种公共交通方式,最大化地吸引人群。这个方案在底特律原有地城市肌理上发展起来,并不是将全新的概念生硬地加入,减少风险。







译者:筑龙网 flyingboots |